S&Sビルディング
| 物件名 | S&Sビルディング | ||
|---|---|---|---|
| 住所 | 東京都新宿区新小川町6-36 | ||
| 最寄駅 | |||
| 竣工年 | 1994年3月 | ||
| 規模 | 地上14階 地下1階 | ||
| 空調 | 個別空調 | OAフロア | OAフロア |
| EV | 1 基 | トイレ | 男女別・室外 |
| 駐車場 | 有り | 24時間使用 | 使用可 |
| 耐震 | 新耐震基準 | 機械警備 | 有り |
募集概要
| 階数 |
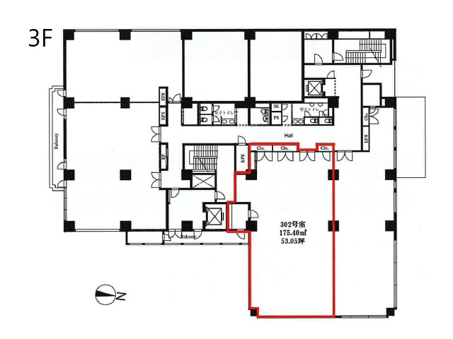
3階
302
|
|---|---|
| 坪数 | 53.05坪 |
| 用途 | 事務所 |
| 月額(賃料+共益費) (税別) | 相談 |
| 坪単価(賃料+共益費) (税別) | 相談 |
| 賃料(税別) | 相談 |
| 共益費(税別) | 賃料に含む |
| 敷金 | 10ヶ月 |
| 礼金 | 無し |
| 償却 | 無し |
| 入居可能日 | 即日 |
| 空室確認日 | 2026/03/24 |
その他空室情報
| 階数 | 坪数 |
賃料 (税別) |
共益費 (税別) |
敷金・保証金 | 入居日 | 詳細 |
お気に入り 追加 |
|---|---|---|---|---|---|---|---|
|
3階
304居抜き
|
27.96坪 | 相談 | 賃料に含む | 10ヶ月 | 相談 |
|
|









