TOKIMEKIビル
| 物件名 | TOKIMEKIビル | ||
|---|---|---|---|
| 住所 | 滋賀県大津市馬場1-7-12 | ||
| 最寄駅 | |||
| 竣工年 | 2003年3月 | ||
| 規模 | 地上4階 | ||
| 空調 | OAフロア | ||
| EV | 2 基 | トイレ | 男女別・室外 |
| 駐車場 | 24時間使用 | ||
| 耐震 | 新耐震基準 | 機械警備 | |
募集概要
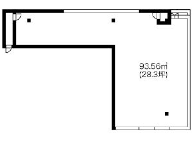
| 階数 |
2階
2A-1
|
|---|---|
| 坪数 | 28.3坪 |
| 用途 | 事務所 , 店舗 |
| 月額(賃料+共益費) (税別) | 325,450円 |
| 坪単価(賃料+共益費) (税別) | 11,500円/坪 |
| 賃料(税別) |
254,700円 (9,000円/坪) |
| 共益費(税別) |
70,750円 (2,500円/坪) |
| 敷金 | 6ヶ月 |
| 礼金 | 無し |
| 償却 | |
| 入居可能日 | 即日 |
| 空室確認日 | 2026/04/09 |
その他空室情報
| 階数 | 坪数 |
賃料 (税別) |
共益費 (税別) |
敷金・保証金 | 入居日 | 詳細 |
お気に入り 追加 |
|---|---|---|---|---|---|---|---|
|
2階
2C
|
32.49坪 |
162,450円 (5,000円/坪) |
64,980円 (2,000円/坪) |
6ヶ月 | 即日 |
|
|
|
3階
3D
|
43.74坪 |
393,660円 (9,000円/坪) |
109,350円 (2,500円/坪) |
6ヶ月 | 即日 |
|
|









