大陽ビルディング
| 物件名 | 大陽ビルディング | ||
|---|---|---|---|
| 住所 | 兵庫県尼崎市神田北通2-12-1 | ||
| 最寄駅 | |||
| 竣工年 | 1988年7月 | ||
| 規模 | 地上8階 地下1階 | ||
| 空調 | 個別空調 | OAフロア | タイルカーペット |
| EV | 1 基 | トイレ | 男女別・室外 |
| 駐車場 | 24時間使用 | 使用不可 | |
| 耐震 | 新耐震基準 | 機械警備 | 有り |
募集概要
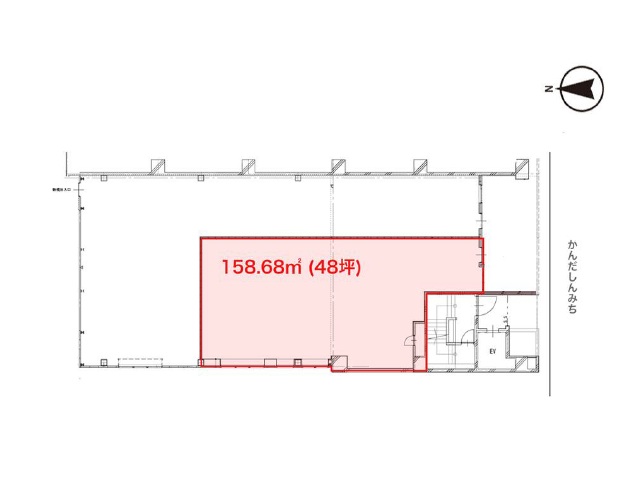
| 階数 | 1階 |
|---|---|
| 坪数 | 48坪 |
| 用途 | 店舗 |
| 月額(賃料+共益費) (税別) | 720,000円 |
| 坪単価(賃料+共益費) (税別) | 15,000円/坪 |
| 賃料(税別) |
720,000円 (15,000円/坪) |
| 共益費(税別) | 賃料に含む |
| 敷金 | 13ヶ月 |
| 礼金 | 無し |
| 償却 | 無し |
| 入居可能日 | 即日 |
| 空室確認日 | 2025/09/29 |
その他空室情報
| 階数 | 坪数 |
賃料 (税別) |
共益費 (税別) |
敷金・保証金 | 入居日 | 詳細 |
お気に入り 追加 |
|---|---|---|---|---|---|---|---|
|
5階
C
|
20.13坪 |
181,170円 (9,000円/坪) |
賃料に含む | 10ヶ月 | 即日 |
|
|
|
5階
EF
|
45.87坪 |
412,830円 (9,000円/坪) |
賃料に含む | 10ヶ月 | 即日 |
|
|
| 6階 | 131.73坪 |
1,185,570円 (9,000円/坪) |
賃料に含む | 10ヶ月 | 即日 |
|
|
| 7階 | 131.73坪 |
1,185,570円 (9,000円/坪) |
賃料に含む | 10ヶ月 | 相談 |
|
|









