エレガントビル南館
| 物件名 | エレガントビル南館 | ||
|---|---|---|---|
| 住所 | 大阪府大阪市北区天神橋6-6-19 | ||
| 最寄駅 | |||
| 竣工年 | 1970年1月 | ||
| 規模 | 地上10階 地下1階 | ||
| 空調 | 個別空調 | OAフロア | タイルカーペット |
| EV | 2 基 | トイレ | 男女別・室外 |
| 駐車場 | 24時間使用 | 使用可 | |
| 耐震 | 旧耐震基準 | 機械警備 | 有り |
募集概要
| 階数 |
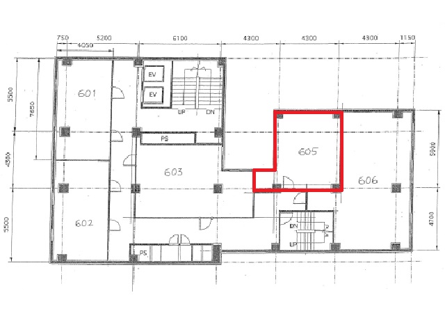
6階
605
|
|---|---|
| 坪数 | 10坪 |
| 用途 | 事務所 |
| 月額(賃料+共益費) (税別) | 相談 |
| 坪単価(賃料+共益費) (税別) | 相談 |
| 賃料(税別) | 相談 |
| 共益費(税別) | 相談 |
| 敷金 | 相談 |
| 礼金 | 無し |
| 償却 | 敷引 |
| 入居可能日 | 相談 |
| 空室確認日 | 2025/09/29 |
その他空室情報
| 階数 | 坪数 |
賃料 (税別) |
共益費 (税別) |
敷金・保証金 | 入居日 | 詳細 |
お気に入り 追加 |
|---|---|---|---|---|---|---|---|
|
5階
501
|
9坪 | 相談 | 相談 | 相談 | 相談 |
|
|
|
6階
602
|
9坪 | 相談 | 相談 | 相談 | 相談 |
|
|
|
6階
606
|
16.5坪 | 相談 | 相談 | 相談 | 相談 |
|
|
|
6階
603
|
13.5坪 | 相談 | 相談 | 相談 | 相談 |
|
|
|
7階
703
|
13.5坪 |
80,000円 (5,926円/坪) |
18,000円 (1,333円/坪) |
300,000円 | 相談 |
|
|
|
9階
903
|
13.5坪 |
80,000円 (5,926円/坪) |
18,000円 (1,333円/坪) |
300,000円 | 相談 |
|
|
|
9階
902
|
9坪 |
68,000円 (7,556円/坪) |
16,000円 (1,778円/坪) |
300,000円 | 相談 |
|
|
|
10階
1002
|
11坪 |
85,000円 (7,727円/坪) |
13,000円 (1,182円/坪) |
300,000円 | 相談 |
|
|
|
10階
1003
|
20坪 |
160,000円 (8,000円/坪) |
18,000円 (900円/坪) |
500,000円 | 相談 |
|
|
|
10階
1005
|
20坪 |
160,000円 (8,000円/坪) |
18,000円 (900円/坪) |
500,000円 | 相談 |
|
|
|
10階
1006
|
8.5坪 |
68,000円 (8,000円/坪) |
12,000円 (1,412円/坪) |
300,000円 | 相談 |
|
|









