YAMATO北1ビル
| 物件名 | YAMATO北1ビル | ||
|---|---|---|---|
| 住所 | 北海道札幌市中央区北1条西2-11-2 | ||
| 最寄駅 | |||
| 竣工年 | 2019年4月 | ||
| 規模 | 地上8階 | ||
| 空調 | 個別空調 | OAフロア | OAフロア |
| EV | 1 基 | トイレ | 男女別・室外 |
| 駐車場 | 24時間使用 | 使用可 | |
| 耐震 | 新耐震基準 | 機械警備 | 有り |
募集概要
| 階数 |
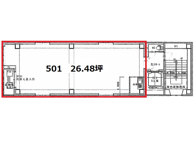
5階
501
|
|---|---|
| 坪数 | 26.67坪 |
| 用途 | 事務所 |
| 月額(賃料+共益費) (税別) | 506,730円 |
| 坪単価(賃料+共益費) (税別) | 19,000円/坪 |
| 賃料(税別) |
453,390円 (17,000円/坪) |
| 共益費(税別) |
53,340円 (2,000円/坪) |
| 敷金 | 8ヶ月 |
| 礼金 | 無し |
| 償却 | |
| 入居可能日 | 即日 |
| 空室確認日 | 2026/01/26 |
その他空室情報
| 階数 | 坪数 |
賃料 (税別) |
共益費 (税別) |
敷金・保証金 | 入居日 | 詳細 |
お気に入り 追加 |
|---|---|---|---|---|---|---|---|
|
4階
401
|
26.47坪 |
449,990円 (17,000円/坪) |
52,940円 (2,000円/坪) |
8ヶ月 | 2026年5月 |
|
|









