タチバナビル
| 物件名 | タチバナビル | ||
|---|---|---|---|
| 住所 | 新潟県新潟市中央区東大通2-2-18 | ||
| 最寄駅 | |||
| 竣工年 | 1970年10月 | ||
| 規模 | 地上7階 地下1階 | ||
| 空調 | 個別空調 | OAフロア | OAフロア |
| EV | 2 基 | トイレ | 男女別・室外 |
| 駐車場 | 有り | 24時間使用 | 調査中 |
| 耐震 | 耐震補強済 | 機械警備 | 有り |
募集概要
| 階数 |
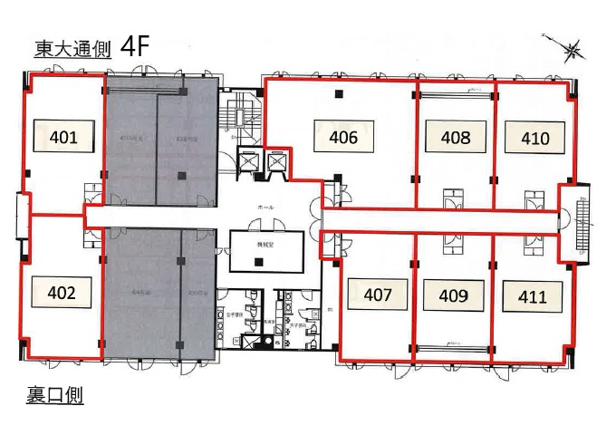
4階
407
|
|---|---|
| 坪数 | 18.15坪 |
| 用途 | 事務所 |
| 月額(賃料+共益費) (税別) | 208,725円 |
| 坪単価(賃料+共益費) (税別) | 11,500円/坪 |
| 賃料(税別) |
208,725円 (11,500円/坪) |
| 共益費(税別) | 無し |
| 敷金 | 3ヶ月 |
| 礼金 | 無し |
| 償却 | 無し |
| 入居可能日 | 即日 |
| 空室確認日 | 2025/10/23 |
その他空室情報
| 階数 | 坪数 |
賃料 (税別) |
共益費 (税別) |
敷金・保証金 | 入居日 | 詳細 |
お気に入り 追加 |
|---|---|---|---|---|---|---|---|
|
2階
203A
|
17.19坪 |
206,280円 (12,000円/坪) |
無し | 3ヶ月 | 即日 |
|
|
|
2階
201
|
19.64坪 |
235,680円 (12,000円/坪) |
無し | 3ヶ月 | 即日 |
|
|
|
3階
302
|
30.8坪 |
323,400円 (10,500円/坪) |
無し | 4ヶ月 | 即日 |
|
|
|
3階
304
|
17.99坪 |
215,880円 (12,000円/坪) |
無し | 3ヶ月 | 即日 |
|
|
|
3階
306 申込有
|
17.89坪 |
214,680円 (12,000円/坪) |
無し | 3ヶ月 | 即日 |
|
|
|
4階
409
|
18.17坪 |
208,955円 (11,500円/坪) |
無し | 3ヶ月 | 即日 |
|
|
|
4階
411
|
18.04坪 |
207,460円 (11,500円/坪) |
無し | 3ヶ月 | 即日 |
|
|
|
4階
410
|
17.89坪 |
214,680円 (12,000円/坪) |
無し | 3ヶ月 | 即日 |
|
|
|
4階
408
|
17.99坪 |
215,880円 (12,000円/坪) |
無し | 3ヶ月 | 即日 |
|
|
|
4階
406
|
30.8坪 |
323,400円 (10,500円/坪) |
無し | 4ヶ月 | 即日 |
|
|
|
4階
402
|
19.81坪 |
227,815円 (11,500円/坪) |
無し | 3ヶ月 | 即日 |
|
|
|
4階
401
|
19.64坪 |
235,680円 (12,000円/坪) |
無し | 3ヶ月 | 即日 |
|
|
|
5階
508
|
18.17坪 |
208,955円 (11,500円/坪) |
無し | 3ヶ月 | 即日 |
|
|
|
5階
510
|
18.04坪 |
207,460円 (11,500円/坪) |
無し | 3ヶ月 | 即日 |
|
|
|
5階
501A
|
17.24坪 |
206,880円 (12,000円/坪) |
無し | 3ヶ月 | 2025年12月 |
|
|
|
6階
610 申込有
|
18.15坪 |
208,725円 (11,500円/坪) |
無し | 3ヶ月 | 即日 |
|
|
|
6階
611
|
17.99坪 |
215,880円 (12,000円/坪) |
無し | 3ヶ月 | 即日 |
|
|
|
6階
612 申込有
|
18.17坪 |
208,955円 (11,500円/坪) |
無し | 3ヶ月 | 即日 |
|
|
|
6階
613 申込有
|
17.89坪 |
214,680円 (12,000円/坪) |
無し | 3ヶ月 | 即日 |
|
|









