音羽壱番館一社
| 物件名 | 音羽壱番館一社 | ||
|---|---|---|---|
| 住所 | 愛知県名古屋市名東区一社4-142 | ||
| 最寄駅 | |||
| 竣工年 | 1973年6月 | ||
| 規模 | 地上6階 | ||
| 空調 | 個別空調 | OAフロア | Pタイル |
| EV | 1 基 | トイレ | 男女共用・室外 |
| 駐車場 | 有り | 24時間使用 | 使用可 |
| 耐震 | 旧耐震基準 | 機械警備 | |
募集概要
| 階数 |
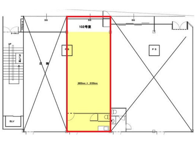
1階
102
|
|---|---|
| 坪数 | 8.83坪 |
| 用途 | 事務所 , 店舗 |
| 月額(賃料+共益費) (税別) | 72,000円 |
| 坪単価(賃料+共益費) (税別) | 8,154円/坪 |
| 賃料(税別) |
72,000円 (8,154円/坪) |
| 共益費(税別) | 賃料に含む |
| 敷金 | 6ヶ月 |
| 礼金 | 1ヶ月 |
| 償却 | 相談 |
| 入居可能日 | 2025年12月 |
| 空室確認日 | 2025/10/08 |









