ロクラス今泉
| 物件名 | ロクラス今泉 | ||
|---|---|---|---|
| 住所 | 福岡県福岡市中央区今泉1-11-5 | ||
| 最寄駅 | |||
| 竣工年 | 2019年5月 | ||
| 規模 | 地上9階 | ||
| 空調 | 無し | OAフロア | スケルトン |
| EV | 1 基 | トイレ | |
| 駐車場 | 無し | 24時間使用 | 使用可 |
| 耐震 | 新耐震基準 | 機械警備 | 有り |
募集概要
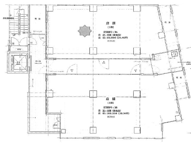
| 階数 |
3階
B
|
|---|---|
| 坪数 | 30.34坪 |
| 用途 | 店舗 |
| 月額(賃料+共益費) (税別) | 546,120円 |
| 坪単価(賃料+共益費) (税別) | 18,000円/坪 |
| 賃料(税別) |
455,100円 (15,000円/坪) |
| 共益費(税別) |
91,020円 (3,000円/坪) |
| 敷金 | 10ヶ月 |
| 礼金 | 無し |
| 償却 | |
| 入居可能日 | 2026年2月 |
| 空室確認日 | 2026/01/07 |
その他空室情報
| 階数 | 坪数 |
賃料 (税別) |
共益費 (税別) |
敷金・保証金 | 入居日 | 詳細 |
お気に入り 追加 |
|---|---|---|---|---|---|---|---|
| 2階 | 66.54坪 |
1,064,640円 (16,000円/坪) |
199,620円 (3,000円/坪) |
10ヶ月 | 2026年3月 |
|
|










