THE TERRACE
| 物件名 | THE TERRACE | ||
|---|---|---|---|
| 住所 | 愛知県刈谷市相生町1-28 | ||
| 最寄駅 | |||
| 竣工年 | 2018年1月 | ||
| 規模 | 地上4階 | ||
| 空調 | 無し | OAフロア | スケルトン |
| EV | 2 基 | トイレ | 男女共用・室内 |
| 駐車場 | 無し | 24時間使用 | 使用可 |
| 耐震 | 新耐震基準 | 機械警備 | 無し |
募集概要
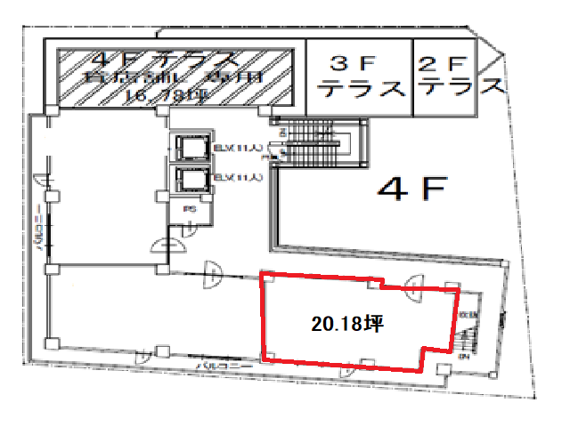
| 階数 |
4階
N
|
|---|---|
| 坪数 | 19.98坪 |
| 用途 | 店舗 |
| 月額(賃料+共益費) (税別) | 263,736円 |
| 坪単価(賃料+共益費) (税別) | 13,200円/坪 |
| 賃料(税別) |
263,736円 (13,200円/坪) |
| 共益費(税別) | 賃料に含む |
| 敷金 | 3ヶ月 |
| 礼金 | 無し |
| 償却 | 相談 |
| 入居可能日 | 2026年3月 |
| 空室確認日 | 2025/11/14 |
その他空室情報
| 階数 | 坪数 |
賃料 (税別) |
共益費 (税別) |
敷金・保証金 | 入居日 | 詳細 |
お気に入り 追加 |
|---|---|---|---|---|---|---|---|
|
4階
L
|
24.78坪 |
286,209円 (11,550円/坪) |
賃料に含む | 3ヶ月 | 2025年12月 |
|
|









