第一フロンティアビル
| 物件名 | 第一フロンティアビル | ||
|---|---|---|---|
| 住所 | 埼玉県さいたま市中央区鈴谷2-744-1 | ||
| 最寄駅 | |||
| 竣工年 | 2008年 | ||
| 規模 | 地上4階 | ||
| 空調 | 個別空調 | OAフロア | タイルカーペット / スケルトン |
| EV | トイレ | 調査中 | |
| 駐車場 | 調査中 | 24時間使用 | 使用可 |
| 耐震 | 新耐震基準 | 機械警備 | 調査中 |
募集概要
| 階数 | 1階 |
|---|---|
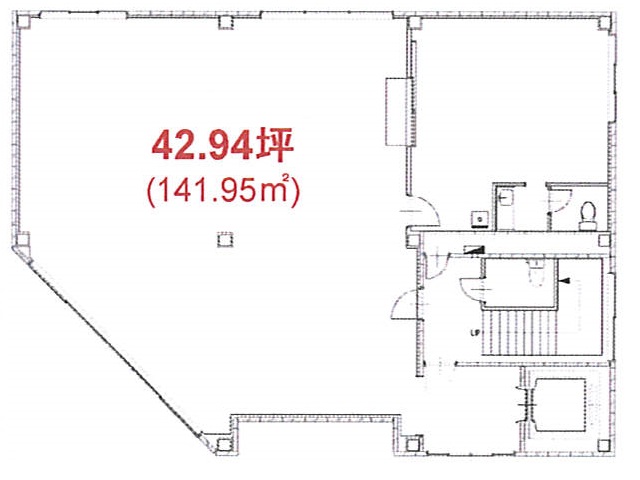
| 坪数 | 42.94坪 |
| 用途 | 事務所 , 店舗 |
| 月額(賃料+共益費) (税別) | 相談 |
| 坪単価(賃料+共益費) (税別) | 相談 |
| 賃料(税別) | 相談 |
| 共益費(税別) |
64,410円 (1,500円/坪) |
| 敷金 | 10ヶ月 |
| 礼金 | 無し |
| 償却 | 2ヶ月 |
| 入居可能日 | 2026年4月 |
| 空室確認日 | 2025/11/12 |
その他空室情報
| 階数 | 坪数 |
賃料 (税別) |
共益費 (税別) |
敷金・保証金 | 入居日 | 詳細 |
お気に入り 追加 |
|---|---|---|---|---|---|---|---|
| 2階 | 44.13坪 |
441,300円 (10,000円/坪) |
66,195円 (1,500円/坪) |
10ヶ月 | 2026年4月 |
|
|









