津栄町三交ビル
| 物件名 | 津栄町三交ビル | ||
|---|---|---|---|
| 住所 | 三重県津市栄町4-255 | ||
| 最寄駅 | |||
| 竣工年 | 2010年10月 | ||
| 規模 | 地上6階 | ||
| 空調 | 個別空調 | OAフロア | OAフロア |
| EV | 1 基 | トイレ | 男女別・室外 |
| 駐車場 | 有り | 24時間使用 | 使用可 |
| 耐震 | 新耐震基準 | 機械警備 | 有り |
募集概要
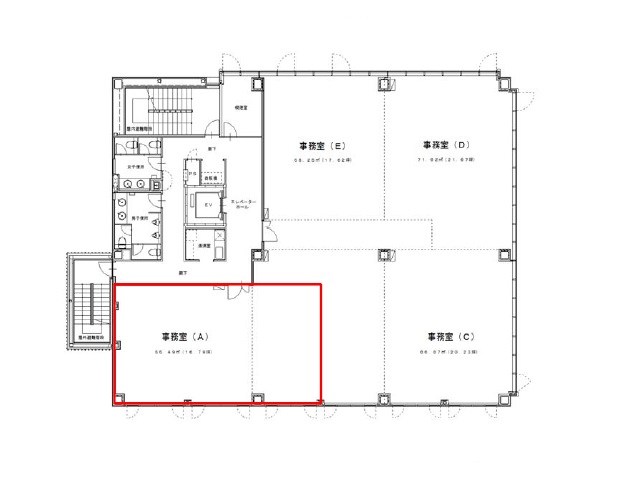
| 階数 |
3階
A
|
|---|---|
| 坪数 | 24.96坪 |
| 用途 | 事務所 |
| 月額(賃料+共益費) (税別) | 312,000円 |
| 坪単価(賃料+共益費) (税別) | 12,500円/坪 |
| 賃料(税別) |
249,600円 (10,000円/坪) |
| 共益費(税別) |
62,400円 (2,500円/坪) |
| 敷金 | 12ヶ月 |
| 礼金 | 無し |
| 償却 | 無し |
| 入居可能日 | 2026年4月 |
| 空室確認日 | 2025/11/12 |
その他空室情報
| 階数 | 坪数 |
賃料 (税別) |
共益費 (税別) |
敷金・保証金 | 入居日 | 詳細 |
お気に入り 追加 |
|---|---|---|---|---|---|---|---|
|
3階
B
|
20.4坪 |
204,000円 (10,000円/坪) |
51,000円 (2,500円/坪) |
12ヶ月 | 即日 |
|
|
|
4階
BCD
|
63.57坪 |
635,700円 (10,000円/坪) |
158,925円 (2,500円/坪) |
12ヶ月 | 2026年1月 |
|
|









