オフィスニューガイア大分北ビル
| 物件名 | オフィスニューガイア大分北ビル | ||
|---|---|---|---|
| 住所 | 大分県大分市碩田町3-1-1 | ||
| 最寄駅 | |||
| 竣工年 | 1972年1月 | ||
| 規模 | 地上6階 | ||
| 空調 | 個別空調 | OAフロア | OAフロア / タイルカーペット |
| EV | 1 基 | トイレ | 男女別・室外 |
| 駐車場 | 有り | 24時間使用 | 使用可 |
| 耐震 | 旧耐震基準 | 機械警備 | 有り |
募集概要
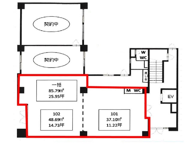
| 階数 | 1階 |
|---|---|
| 坪数 | 25.95坪 |
| 用途 | 事務所 , 店舗 , レンタルオフィス |
| 月額(賃料+共益費) (税別) | 171,270円 |
| 坪単価(賃料+共益費) (税別) | 6,600円/坪 |
| 賃料(税別) |
171,270円 (6,600円/坪) |
| 共益費(税別) | 賃料に含む |
| 敷金 | 4ヶ月 |
| 礼金 | 無し |
| 償却 | |
| 入居可能日 | 即日 |
| 空室確認日 | ※ |
※レンタルオフィスの募集状況は流動的なため下記は仮表示です。最新の募集状況はお問合せ下さい。
※また、レンタルオフィスの面積は仮の数値です。実際の面積とは異なりますのでご注意ください
※また、レンタルオフィスの面積は仮の数値です。実際の面積とは異なりますのでご注意ください









