プロフィシャルビル久留米
物件名 | プロフィシャルビル久留米 | ||
---|---|---|---|
住所 | 福岡県久留米市東町25-2 | ||
最寄駅 | |||
竣工年 | 1991年3月 | ||
規模 | 地上7階 | ||
空調 | 個別空調 | OAフロア | タイルカーペット / Pタイル |
EV | 2 基 | トイレ | 男女別・室外 |
駐車場 | 有り | 24時間使用 | 使用可 |
耐震 | 新耐震基準 | 機械警備 | 有り |
募集概要
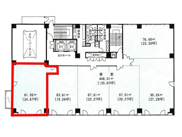
階数 |
6階
604
|
---|---|
坪数 | 24.67坪 |
用途 | 事務所 |
月額(賃料+共益費) (税別) | 222,030円 |
坪単価(賃料+共益費) (税別) | 9,000円/坪 |
賃料(税別) |
222,030円 (9,000円/坪) |
共益費(税別) | 賃料に含む |
敷金 | 6ヶ月 |
礼金 | 無し |
償却 | |
入居可能日 | 即日 |
空室確認日 | 2024/11/12 |
その他空室情報
階数 | 坪数 |
賃料 (税別) |
共益費 (税別) |
敷金・保証金 | 入居日 | 詳細 |
お気に入り 追加 |
---|---|---|---|---|---|---|---|
1階
101
|
68.83坪 |
963,620円 (14,000円/坪) |
賃料に含む | 6ヶ月 | 即日 |
![]() |
![]() |
1階
102
|
20.69坪 |
289,660円 (14,000円/坪) |
賃料に含む | 6ヶ月 | 即日 |
![]() |
![]() |
1階
統合AB
|
66.11坪 | 相談 | 賃料に含む | 相談 | 相談 |
![]() |
![]() |
1階
A
|
49.36坪 |
493,600円 (10,000円/坪) |
賃料に含む | 6ヶ月 | 相談 |
![]() |
![]() |
2階
202
|
20.28坪 |
182,520円 (9,000円/坪) |
賃料に含む | 6ヶ月 | 即日 |
![]() |
![]() |
2階
201
|
71.48坪 |
643,320円 (9,000円/坪) |
賃料に含む | 6ヶ月 | 即日 |
![]() |
![]() |
2階
A
|
24.39坪 |
219,510円 (9,000円/坪) |
賃料に含む | 4ヶ月 | 相談 |
![]() |
![]() |
2階
B
|
21.52坪 |
193,680円 (9,000円/坪) |
賃料に含む | 4ヶ月 | 相談 |
![]() |
![]() |
2階
C
|
20.27坪 |
182,430円 (9,000円/坪) |
賃料に含む | 4ヶ月 | 相談 |
![]() |
![]() |
2階
E
|
25.38坪 |
228,420円 (9,000円/坪) |
賃料に含む | 4ヶ月 | 相談 |
![]() |
![]() |
2階
統合A~G
|
133.35坪 | 相談 | 賃料に含む | 4ヶ月 | 相談 |
![]() |
![]() |
3階
A
|
24.39坪 |
219,510円 (9,000円/坪) |
賃料に含む | 4ヶ月 | 相談 |
![]() |
![]() |
3階
統合A~G
|
133.35坪 | 相談 | 賃料に含む | 4ヶ月 | 相談 |
![]() |
![]() |
3階
E
|
25.38坪 |
228,420円 (9,000円/坪) |
賃料に含む | 4ヶ月 | 相談 |
![]() |
![]() |
3階
C
|
20.27坪 |
182,430円 (9,000円/坪) |
賃料に含む | 4ヶ月 | 相談 |
![]() |
![]() |
3階
B
|
21.52坪 |
193,680円 (9,000円/坪) |
賃料に含む | 4ヶ月 | 相談 |
![]() |
![]() |
3階
301
|
178.35坪 |
1,605,150円 (9,000円/坪) |
賃料に含む | 6ヶ月 | 即日 |
![]() |
![]() |
5階
503
|
23.64坪 |
212,760円 (9,000円/坪) |
賃料に含む | 6ヶ月 | 即日 |
![]() |
![]() |
5階
502
|
39.6坪 |
356,400円 (9,000円/坪) |
賃料に含む | 6ヶ月 | 即日 |
![]() |
![]() |
5階
C
|
20.27坪 |
182,430円 (9,000円/坪) |
賃料に含む | 4ヶ月 | 相談 |
![]() |
![]() |
5階
E
|
25.16坪 |
226,440円 (9,000円/坪) |
賃料に含む | 4ヶ月 | 相談 |
![]() |
![]() |
5階
統合CDE
|
62.57坪 |
563,130円 (9,000円/坪) |
賃料に含む | 4ヶ月 | 相談 |
![]() |
![]() |
6階
統合AB
|
28.4坪 |
255,600円 (9,000円/坪) |
賃料に含む | 4ヶ月 | 相談 |
![]() |
![]() |
6階
E
|
24.75坪 |
222,750円 (9,000円/坪) |
賃料に含む | 4ヶ月 | 相談 |
![]() |
![]() |
6階
B
|
20.27坪 |
182,430円 (9,000円/坪) |
賃料に含む | 4ヶ月 | 相談 |
![]() |
![]() |
6階
A
|
28.4坪 |
255,600円 (9,000円/坪) |
賃料に含む | 4ヶ月 | 相談 |
![]() |
![]() |
6階
601
|
48.33坪 |
434,970円 (9,000円/坪) |
賃料に含む | 6ヶ月 | 即日 |
![]() |
![]() |
7階
702
|
20.27坪 |
182,430円 (9,000円/坪) |
賃料に含む | 即日 |
![]() |
![]() |
|
7階
703
|
43.91坪 |
395,190円 (9,000円/坪) |
賃料に含む | 6ヶ月 | 即日 |
![]() |
![]() |
7階
A
|
28.04坪 |
252,360円 (9,000円/坪) |
賃料に含む | 4ヶ月 | 相談 |
![]() |
![]() |
7階
B
|
20.7坪 |
186,300円 (9,000円/坪) |
賃料に含む | 4ヶ月 | 相談 |
![]() |
![]() |
7階
C
|
20.27坪 |
182,430円 (9,000円/坪) |
賃料に含む | 4ヶ月 | 相談 |
![]() |
![]() |
7階
E
|
25.38坪 |
228,420円 (9,000円/坪) |
賃料に含む | 4ヶ月 | 相談 |
![]() |
![]() |
7階
統合A~E
|
112.63坪 |
1,013,670円 (9,000円/坪) |
賃料に含む | 4ヶ月 | 相談 |
![]() |
![]() |