キウレイコンビル
| 物件名 | キウレイコンビル | ||
|---|---|---|---|
| 住所 | 東京都豊島区池袋2-47-3 | ||
| 最寄駅 | |||
| 竣工年 | 1988年11月 | ||
| 規模 | 地上9階 地下1階 | ||
| 空調 | 個別空調 | OAフロア | その他 |
| EV | 1 基 | トイレ | 男女別・室外 |
| 駐車場 | 有り | 24時間使用 | 使用可 |
| 耐震 | 新耐震基準 | 機械警備 | 無し |
募集概要
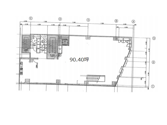
| 階数 | 2階 |
|---|---|
| 坪数 | 90.4坪 |
| 用途 | 事務所 , 店舗 |
| 月額(賃料+共益費) (税別) | 1,491,600円 |
| 坪単価(賃料+共益費) (税別) | 16,500円/坪 |
| 賃料(税別) |
1,220,400円 (13,500円/坪) |
| 共益費(税別) |
271,200円 (3,000円/坪) |
| 敷金 | 10ヶ月 |
| 礼金 | 1ヶ月 |
| 償却 | 20% |
| 入居可能日 | 2026年8月 |
| 空室確認日 | 2026/03/05 |









