近江八幡第一ビル
| 物件名 | 近江八幡第一ビル | ||
|---|---|---|---|
| 住所 | 滋賀県近江八幡市鷹飼町562 | ||
| 最寄駅 | |||
| 竣工年 | 1990年3月 | ||
| 規模 | 地上階 | ||
| 空調 | 個別空調 | OAフロア | タイルカーペット |
| EV | 1 基 | トイレ | 男女別・室外 |
| 駐車場 | 有り | 24時間使用 | 使用可 |
| 耐震 | 新耐震基準 | 機械警備 | 有り |
募集概要
| 階数 |
3階
ワンフロア統合案
|
|---|---|
| 坪数 | 84.38坪 |
| 用途 | 事務所 |
| 月額(賃料+共益費) (税別) | 759,420円 |
| 坪単価(賃料+共益費) (税別) | 9,000円/坪 |
| 賃料(税別) |
759,420円 (9,000円/坪) |
| 共益費(税別) | 賃料に含む |
| 敷金 | 4ヶ月 |
| 礼金 | 1ヶ月 |
| 償却 | |
| 入居可能日 | 2026年5月 |
| 空室確認日 | 2025/11/19 |
その他空室情報
| 階数 | 坪数 |
賃料 (税別) |
共益費 (税別) |
敷金・保証金 | 入居日 | 詳細 |
お気に入り 追加 |
|---|---|---|---|---|---|---|---|
|
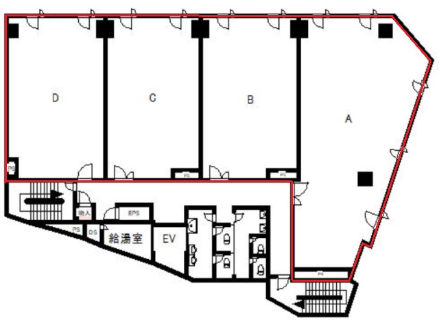
3階
D
|
17.84坪 |
160,560円 (9,000円/坪) |
賃料に含む | 4ヶ月 | 2026年5月 |
|
|
|
3階
C
|
17.84坪 |
160,560円 (9,000円/坪) |
賃料に含む | 4ヶ月 | 2026年5月 |
|
|
|
3階
B
|
17.84坪 |
160,560円 (9,000円/坪) |
賃料に含む | 4ヶ月 | 2026年5月 |
|
|
|
3階
A
|
30.86坪 |
277,740円 (9,000円/坪) |
賃料に含む | 4ヶ月 | 2026年5月 |
|
|
|
4階
C
|
17.84坪 |
160,560円 (9,000円/坪) |
賃料に含む | 4ヶ月 | 即日 |
|
|









