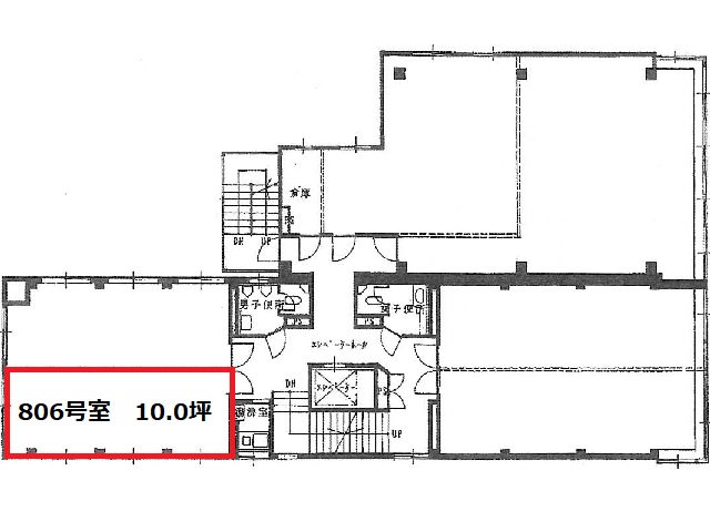
マエダ本社ビル 8階 10坪
現在、こちらのお部屋は募集しておりません。
空室情報は常に更新されています。最新の空室状況はお電話にてお問い合わせください。
こちらのビルには他に空室がございます
このビルの空室を見るマエダ本社ビル
| 物件名 | マエダ本社ビル | ||
|---|---|---|---|
| 住所 | 大阪府大阪市中央区北久宝寺町2-2-13 | ||
| 最寄駅 | |||
| 竣工年 | 1971年1月 | ||
| 規模 | 地上9階 地下1階 | ||
| 空調 | 個別空調 | OAフロア | タイルカーペット |
| EV | 1 基 | トイレ | 男女別・室外 |
| 駐車場 | 24時間使用 | 使用可 | |
| 耐震 | 旧耐震基準 | 機械警備 | 有り |
募集概要
| 階数 |
8階
806
|
|---|---|
| 坪数 | 10坪 |
| 用途 | 事務所 |
その他空室情報
| 階数 | 坪数 |
賃料 (税別) |
共益費 (税別) |
敷金・保証金 | 入居日 | 詳細 |
お気に入り 追加 |
|---|---|---|---|---|---|---|---|
|
5階
502
|
12.5坪 |
66,250円 (5,300円/坪) |
28,875円 (2,310円/坪) |
500,000円 | 即日 |
|
|









