小倉屋山本本店ビル
| 物件名 | 小倉屋山本本店ビル | ||
|---|---|---|---|
| 住所 | 大阪府大阪市中央区南船場4-10-26 | ||
| 最寄駅 | |||
| 竣工年 | 1986年10月 | ||
| 規模 | 地上8階 | ||
| 空調 | 個別空調 | OAフロア | その他 |
| EV | 1 基 | トイレ | 男女共用・室内 |
| 駐車場 | 無し | 24時間使用 | 使用可 |
| 耐震 | 新耐震基準 | 機械警備 | 有り |
募集概要
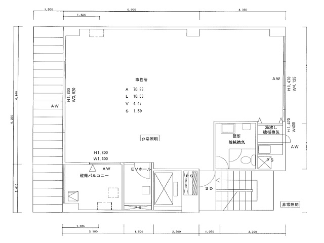
| 階数 | 7階 |
|---|---|
| 坪数 | 24.65坪 |
| 用途 | 事務所 , 店舗 |
| 月額(賃料+共益費) (税別) | 295,800円 |
| 坪単価(賃料+共益費) (税別) | 12,000円/坪 |
| 賃料(税別) |
221,850円 (9,000円/坪) |
| 共益費(税別) |
73,950円 (3,000円/坪) |
| 敷金 | 10ヶ月 |
| 礼金 | 無し |
| 償却 | スライド |
| 入居可能日 | 即日 |
| 空室確認日 | 2025/11/26 |









