こまビル
| 物件名 | こまビル | ||
|---|---|---|---|
| 住所 | 愛知県名古屋市中区錦3-8-7 | ||
| 最寄駅 | |||
| 竣工年 | 1989年4月 | ||
| 規模 | 地上8階 | ||
| 空調 | 個別空調 | OAフロア | OAフロア / OAフロア相談可 |
| EV | 2 基 | トイレ | 男女別・室外 |
| 駐車場 | 有り | 24時間使用 | 使用可 |
| 耐震 | 新耐震基準 | 機械警備 | 有り |
募集概要
| 階数 |
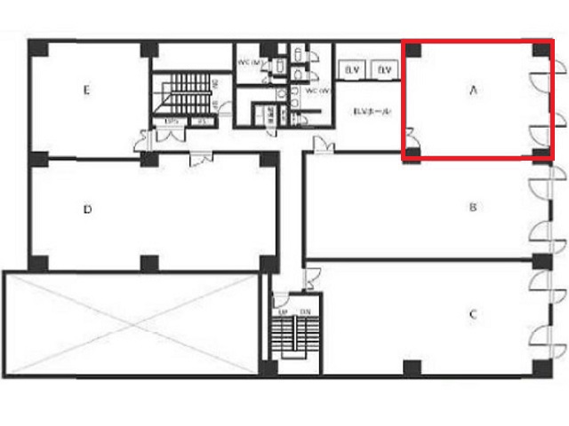
7階
A
|
|---|---|
| 坪数 | 16.89坪 |
| 用途 | 事務所 |
| 月額(賃料+共益費) (税別) | 202,680円 |
| 坪単価(賃料+共益費) (税別) | 12,000円/坪 |
| 賃料(税別) |
152,010円 (9,000円/坪) |
| 共益費(税別) |
50,670円 (3,000円/坪) |
| 敷金 | 12ヶ月 |
| 礼金 | 無し |
| 償却 | 無し |
| 入居可能日 | 2025年12月 |
| 空室確認日 | 2025/11/05 |









