太陽生命名古屋ビル
| 物件名 | 太陽生命名古屋ビル | ||
|---|---|---|---|
| 住所 | 愛知県名古屋市中区錦3-6-34 | ||
| 最寄駅 | |||
| 竣工年 | 1975年4月 | ||
| 規模 | 地上12階 地下1階 | ||
| 空調 | 個別空調 | OAフロア | タイルカーペット |
| EV | 2 基 | トイレ | 男女別・室外 |
| 駐車場 | 有り | 24時間使用 | 使用可 |
| 耐震 | 耐震補強済 | 機械警備 | 有り |
募集概要
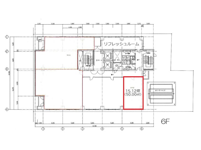
| 階数 | 6階 |
|---|---|
| 坪数 | 15.12坪 |
| 用途 | 事務所 |
| 月額(賃料+共益費) (税別) | 相談 |
| 坪単価(賃料+共益費) (税別) | 相談 |
| 賃料(税別) | 相談 |
| 共益費(税別) | 相談 |
| 敷金 | 相談 |
| 礼金 | 無し |
| 償却 | 無し |
| 入居可能日 | 即日 |
| 空室確認日 | 2026/04/07 |
その他空室情報
| 階数 | 坪数 |
賃料 (税別) |
共益費 (税別) |
敷金・保証金 | 入居日 | 詳細 |
お気に入り 追加 |
|---|---|---|---|---|---|---|---|
| 5階 | 12.63坪 | 相談 | 相談 | 相談 | 即日 |
|
|
| 6階 | 72.61坪 | 相談 | 相談 | 相談 | 即日 |
|
|
|
6階
分割案②
|
39.62坪 | 相談 | 相談 | 相談 | 相談 |
|
|









