三永伏見ビル
| 物件名 | 三永伏見ビル | ||
|---|---|---|---|
| 住所 | 愛知県名古屋市中区錦2-15-20 | ||
| 最寄駅 | |||
| 竣工年 | 1991年1月 | ||
| 規模 | 地上9階 地下1階 | ||
| 空調 | 個別空調 | OAフロア | タイルカーペット |
| EV | 2 基 | トイレ | 男女別・室外 |
| 駐車場 | 有り | 24時間使用 | 使用可 |
| 耐震 | 新耐震基準 | 機械警備 | 有り |
募集概要
| 階数 |
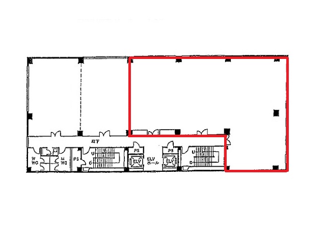
8階
803-805
|
|---|---|
| 坪数 | 79.58坪 |
| 用途 | 事務所 |
| 月額(賃料+共益費) (税別) | 1,217,574円 |
| 坪単価(賃料+共益費) (税別) | 15,300円/坪 |
| 賃料(税別) |
954,960円 (12,000円/坪) |
| 共益費(税別) |
262,614円 (3,300円/坪) |
| 敷金 | 12ヶ月 |
| 礼金 | 無し |
| 償却 | 無し |
| 入居可能日 | 即日 |
| 空室確認日 | 2025/12/01 |
その他空室情報
| 階数 | 坪数 |
賃料 (税別) |
共益費 (税別) |
敷金・保証金 | 入居日 | 詳細 |
お気に入り 追加 |
|---|---|---|---|---|---|---|---|
|
B1階
B101-B102
|
41.94坪 |
503,280円 (12,000円/坪) |
138,402円 (3,300円/坪) |
12ヶ月 | 即日 |
|
|
|
2階
201
|
22.76坪 |
273,120円 (12,000円/坪) |
75,108円 (3,300円/坪) |
12ヶ月 | 即日 |
|
|
|
5階
502-503
|
41.12坪 |
493,440円 (12,000円/坪) |
135,696円 (3,300円/坪) |
12ヶ月 | 2026年1月 |
|
|
|
8階
802
|
21.18坪 |
254,160円 (12,000円/坪) |
69,894円 (3,300円/坪) |
12ヶ月 | 即日 |
|
|









