大樹生命北九州小倉ビル
| 物件名 | 大樹生命北九州小倉ビル | ||
|---|---|---|---|
| 住所 | 福岡県北九州市小倉北区紺屋町12-4 | ||
| 最寄駅 | |||
| 竣工年 | 1986年1月 | ||
| 規模 | 地上9階 | ||
| 空調 | 個別空調 | OAフロア | OAフロア / OAフロア相談可 |
| EV | 3 基 | トイレ | 男女別・室外 |
| 駐車場 | 有り | 24時間使用 | 使用可 |
| 耐震 | 新耐震基準 | 機械警備 | 有り |
募集概要
| 階数 |
2階
分割①
|
|---|---|
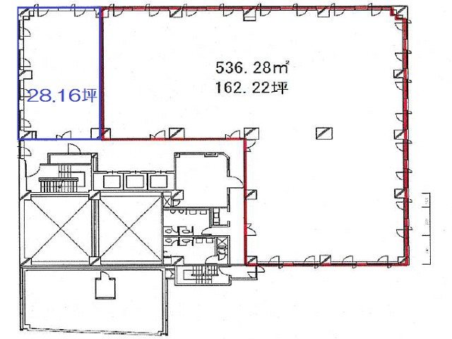
| 坪数 | 162.22坪 |
| 用途 | 事務所 |
| 月額(賃料+共益費) (税別) | 相談 |
| 坪単価(賃料+共益費) (税別) | 相談 |
| 賃料(税別) | 相談 |
| 共益費(税別) |
519,104円 (3,200円/坪) |
| 敷金 | 12ヶ月 |
| 礼金 | 無し |
| 償却 | 無し |
| 入居可能日 | 即日 |
| 空室確認日 | 2026/01/22 |
その他空室情報
| 階数 | 坪数 |
賃料 (税別) |
共益費 (税別) |
敷金・保証金 | 入居日 | 詳細 |
お気に入り 追加 |
|---|---|---|---|---|---|---|---|
| 2階 | 190.38坪 | 相談 |
609,216円 (3,200円/坪) |
12ヶ月 | 即日 |
|
|
|
2階
分割④
|
135.45坪 | 相談 |
433,440円 (3,200円/坪) |
12ヶ月 | 即日 |
|
|
|
2階
分割②
|
159.43坪 | 相談 |
510,176円 (3,200円/坪) |
12ヶ月 | 即日 |
|
|
|
2階
分割③
|
135.94坪 | 相談 |
435,008円 (3,200円/坪) |
12ヶ月 | 即日 |
|
|
|
3階
先行有
|
30.94坪 | 相談 |
99,008円 (3,200円/坪) |
12ヶ月 | 即日 |
|
|
| 3階 | 23.97坪 | 相談 |
76,704円 (3,200円/坪) |
12ヶ月 | 即日 |
|
|
| 3階 | 54.91坪 | 相談 |
175,712円 (3,200円/坪) |
12ヶ月 | 即日 |
|
|
| 5階 | 26.27坪 | 相談 | 賃料に含む | 12ヶ月 | 2026年2月 |
|
|









