鷲田ビル
| 物件名 | 鷲田ビル | ||
|---|---|---|---|
| 住所 | 東京都文京区本郷1-12-6 | ||
| 最寄駅 | |||
| 竣工年 | 1976年3月 | ||
| 規模 | 地上5階 | ||
| 空調 | 個別空調 | OAフロア | その他 |
| EV | 1 基 | トイレ | 男女共用・室内 |
| 駐車場 | 無し | 24時間使用 | 使用可 |
| 耐震 | 旧耐震基準 | 機械警備 | 無し |
募集概要
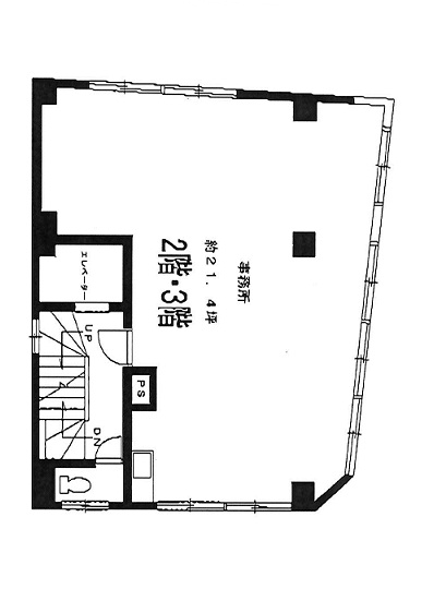
| 階数 | 3階 |
|---|---|
| 坪数 | 21.4坪 |
| 用途 | 事務所 |
| 月額(賃料+共益費) (税別) | 280,000円 |
| 坪単価(賃料+共益費) (税別) | 13,084円/坪 |
| 賃料(税別) |
250,000円 (11,682円/坪) |
| 共益費(税別) |
30,000円 (1,402円/坪) |
| 敷金 | 6ヶ月 |
| 礼金 | 無し |
| 償却 | 2ヶ月 |
| 入居可能日 | 即日 |
| 空室確認日 | 2025/09/26 |









