大蔵マンション南博多
| 物件名 | 大蔵マンション南博多 | ||
|---|---|---|---|
| 住所 | 福岡県福岡市博多区博多駅南3-5-35 | ||
| 最寄駅 | |||
| 竣工年 | 1980年2月 | ||
| 規模 | 地上7階 地上1階 | ||
| 空調 | 個別空調 | OAフロア | その他 |
| EV | 1 基 | トイレ | 男女共用・室内 |
| 駐車場 | 有り | 24時間使用 | 使用可 |
| 耐震 | 旧耐震基準 | 機械警備 | 無し |
募集概要
| 階数 |
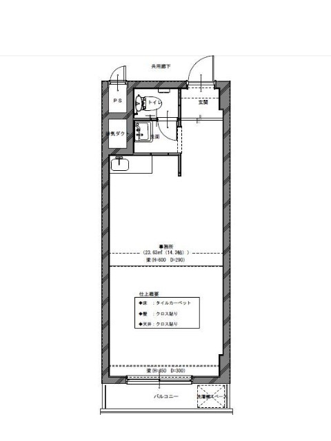
3階
307
|
|---|---|
| 坪数 | 8.99坪 |
| 用途 | 事務所 |
| 月額(賃料+共益費) (税別) | 相談 |
| 坪単価(賃料+共益費) (税別) | 相談 |
| 賃料(税別) | 相談 |
| 共益費(税別) | 賃料に含む |
| 敷金 | 5ヶ月 |
| 礼金 | 敷引 |
| 償却 | 要確認 |
| 入居可能日 | 2026年3月 |
| 空室確認日 | 2025/11/11 |










