A.R.Kビル
| 物件名 | A.R.Kビル | ||
|---|---|---|---|
| 住所 | 福岡県福岡市博多区博多駅東2-17-5 | ||
| 最寄駅 | |||
| 竣工年 | 1975年3月 | ||
| 規模 | 地上9階 地下1階 | ||
| 空調 | 個別空調 | OAフロア | OAフロア / OAフロア相談可 |
| EV | 3 基 | トイレ | 男女別・室外 |
| 駐車場 | 有り | 24時間使用 | 使用可 |
| 耐震 | 旧耐震基準 | 機械警備 | 有り |
募集概要
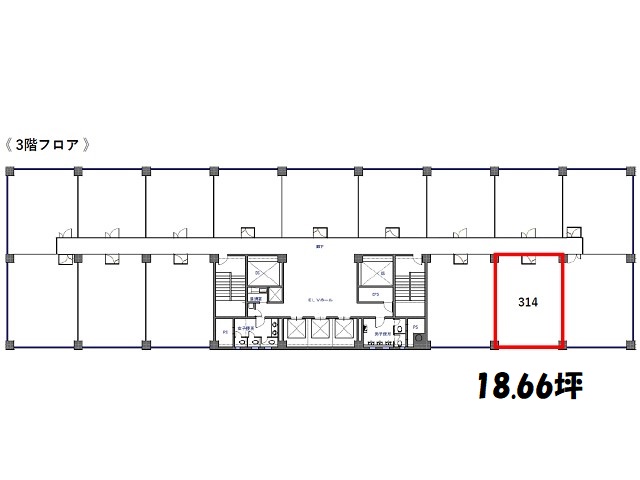
| 階数 |
3階
314
|
|---|---|
| 坪数 | 18.66坪 |
| 用途 | 事務所 |
| 月額(賃料+共益費) (税別) | 264,972円 |
| 坪単価(賃料+共益費) (税別) | 14,200円/坪 |
| 賃料(税別) |
223,920円 (12,000円/坪) |
| 共益費(税別) |
41,052円 (2,200円/坪) |
| 敷金 | 12ヶ月 |
| 礼金 | 無し |
| 償却 | 無し |
| 入居可能日 | 2025年12月 |
| 空室確認日 | 2025/11/17 |
その他空室情報
| 階数 | 坪数 |
賃料 (税別) |
共益費 (税別) |
敷金・保証金 | 入居日 | 詳細 |
お気に入り 追加 |
|---|---|---|---|---|---|---|---|
|
4階
404
|
18.66坪 |
223,920円 (12,000円/坪) |
41,052円 (2,200円/坪) |
12ヶ月 | 2026年1月 |
|
|
|
4階
410
|
13.62坪 |
163,440円 (12,000円/坪) |
29,964円 (2,200円/坪) |
12ヶ月 | 2026年4月 |
|
|
|
5階
514
|
18.66坪 |
223,920円 (12,000円/坪) |
41,052円 (2,200円/坪) |
12ヶ月 | 2026年2月 |
|
|










