エヌケイビル
| 物件名 | エヌケイビル | ||
|---|---|---|---|
| 住所 | 福岡県福岡市博多区博多駅前4-9-28 | ||
| 最寄駅 | |||
| 竣工年 | 1996年7月 | ||
| 規模 | 地上5階 | ||
| 空調 | 個別空調 | OAフロア | タイルカーペット | 
| EV | 1 基 | トイレ | 男女別・室外 | 
| 駐車場 | 無し | 24時間使用 | 使用可 | 
| 耐震 | 新耐震基準 | 機械警備 | 有り | 
募集概要
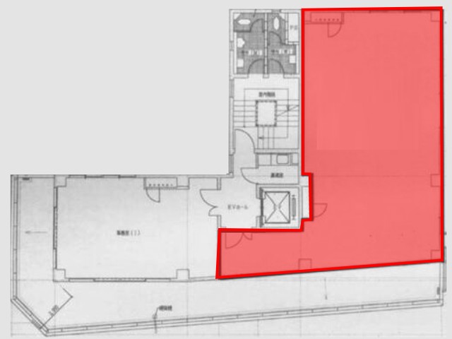
| 階数 | 5階 | 
|---|---|
| 坪数 | 26坪 | 
| 用途 | 事務所 , 店舗 | 
| 月額(賃料+共益費) (税別) | 286,000円 | 
| 坪単価(賃料+共益費) (税別) | 11,000円/坪 | 
| 賃料(税別) | 260,000円 (10,000円/坪) | 
| 共益費(税別) | 26,000円 (1,000円/坪) | 
| 敷金 | 6ヶ月 | 
| 礼金 | 無し | 
| 償却 | 無し | 
| 入居可能日 | 即日 | 
| 空室確認日 | 2025/09/11 | 




 
					
 
							 
							 
							 
							 
							 
							 
							 
							 
							 
							 
							 
							 
							 
							 
							 
							 
							

 
						
 
											
 
											 
											 
											 エリア検索
					エリア検索
				 
                



