福岡昭和通ビル
| 物件名 | 福岡昭和通ビル | ||
|---|---|---|---|
| 住所 | 福岡県福岡市博多区下川端町9-12 | ||
| 最寄駅 | |||
| 竣工年 | 1970年1月 | ||
| 規模 | 地上9階 地下2階 | ||
| 空調 | 個別空調 | OAフロア | OAフロア |
| EV | 3 基 | トイレ | 男女別・室外 |
| 駐車場 | 有り | 24時間使用 | 使用可 |
| 耐震 | 耐震補強済 | 機械警備 | 有り |
募集概要
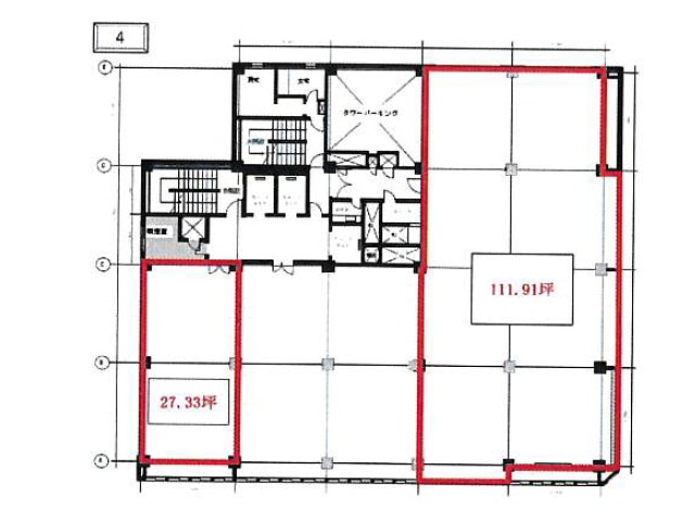
| 階数 |
4階
先行有
|
|---|---|
| 坪数 | 111.91坪 |
| 用途 | 事務所 |
| 月額(賃料+共益費) (税別) | 相談 |
| 坪単価(賃料+共益費) (税別) | 相談 |
| 賃料(税別) | 相談 |
| 共益費(税別) | 相談 |
| 敷金 | 12ヶ月 |
| 礼金 | 無し |
| 償却 | 無し |
| 入居可能日 | 2025年12月 |
| 空室確認日 | 2025/11/07 |
その他空室情報
| 階数 | 坪数 |
賃料 (税別) |
共益費 (税別) |
敷金・保証金 | 入居日 | 詳細 |
お気に入り 追加 |
|---|---|---|---|---|---|---|---|
|
B1階
M1F
|
82.27坪 | 相談 | 相談 | 12ヶ月 | 2026年3月 |
|
|
| 6階 | 165.7坪 | 相談 | 相談 | 12ヶ月 | 即日 |
|
|
|
9階
統合案
|
205.9坪 | 相談 | 相談 | 12ヶ月 | 即日 |
|
|
|
9階
分割案①
|
40.92坪 | 相談 | 相談 | 12ヶ月 | 即日 |
|
|
|
9階
分割案②
|
80坪 | 相談 | 相談 | 12ヶ月 | 即日 |
|
|
|
9階
分割案③
|
84.98坪 | 相談 | 相談 | 12ヶ月 | 即日 |
|
|
|
9階
案①②
|
125.9坪 | 相談 | 相談 | 12ヶ月 | 即日 |
|
|
|
9階
案②③
|
164.98坪 | 相談 | 相談 | 12ヶ月 | 即日 |
|
|










