久原本家天神ビル
| 物件名 | 久原本家天神ビル | ||
|---|---|---|---|
| 住所 | 福岡県福岡市中央区天神4-1-11 | ||
| 最寄駅 | |||
| 竣工年 | 2001年3月 | ||
| 規模 | 地上9階 | ||
| 空調 | 個別空調 | OAフロア | OAフロア |
| EV | 2 基 | トイレ | 男女別・室外 |
| 駐車場 | 有り | 24時間使用 | 使用可 |
| 耐震 | 新耐震基準 | 機械警備 | 有り |
募集概要
| 階数 |
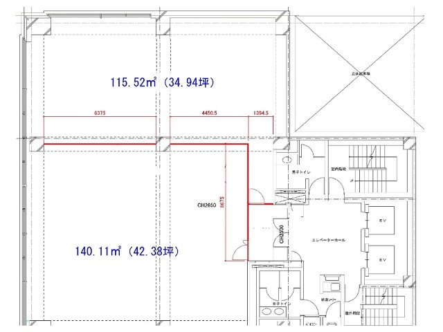
3階
A申込有
|
|---|---|
| 坪数 | 42.38坪 |
| 用途 | 事務所 |
| 月額(賃料+共益費) (税別) | 720,460円 |
| 坪単価(賃料+共益費) (税別) | 17,000円/坪 |
| 賃料(税別) |
593,320円 (14,000円/坪) |
| 共益費(税別) |
127,140円 (3,000円/坪) |
| 敷金 | 10ヶ月 |
| 礼金 | 無し |
| 償却 | 無し |
| 入居可能日 | 2026年3月 |
| 空室確認日 | 2026/02/12 |
その他空室情報
| 階数 | 坪数 |
賃料 (税別) |
共益費 (税別) |
敷金・保証金 | 入居日 | 詳細 |
お気に入り 追加 |
|---|---|---|---|---|---|---|---|
|
8階
B
|
54.45坪 |
762,300円 (14,000円/坪) |
163,350円 (3,000円/坪) |
10ヶ月 | 2026年3月 |
|
|










