紙与渡辺ビル
| 物件名 | 紙与渡辺ビル | ||
|---|---|---|---|
| 住所 | 福岡県福岡市中央区天神1-12-14 | ||
| 最寄駅 | |||
| 竣工年 | 2000年10月 | ||
| 規模 | 地上10階 地下1階 | ||
| 空調 | 個別空調 / セントラル空調 | OAフロア | OAフロア |
| EV | 3 基 | トイレ | 男女別・室外 |
| 駐車場 | 有り | 24時間使用 | 使用可 |
| 耐震 | 新耐震基準 | 機械警備 | 有り |
募集概要
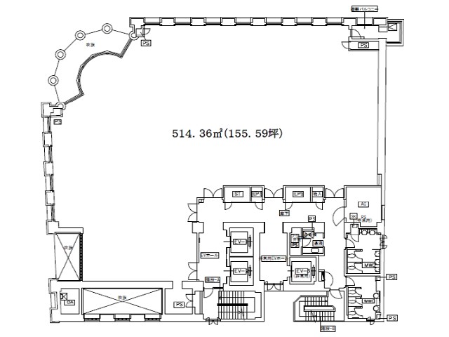
| 階数 | 2階 |
|---|---|
| 坪数 | 155.59坪 |
| 用途 | 事務所 |
| 月額(賃料+共益費) (税別) | 相談 |
| 坪単価(賃料+共益費) (税別) | 相談 |
| 賃料(税別) | 相談 |
| 共益費(税別) |
544,565円 (3,500円/坪) |
| 敷金 | 15ヶ月 |
| 礼金 | 無し |
| 償却 | 無し |
| 入居可能日 | 2026年4月 |
| 空室確認日 | 2026/01/30 |










