アクシブ天神ビル
| 物件名 | アクシブ天神ビル | ||
|---|---|---|---|
| 住所 | 福岡県福岡市中央区大名2-9-34 | ||
| 最寄駅 | |||
| 竣工年 | 2005年2月 | ||
| 規模 | 地上9階 | ||
| 空調 | 個別空調 | OAフロア | OAフロア |
| EV | 1 基 | トイレ | 男女別・室外 |
| 駐車場 | 無し | 24時間使用 | 使用可 |
| 耐震 | 新耐震基準 | 機械警備 | 有り |
募集概要
| 階数 |
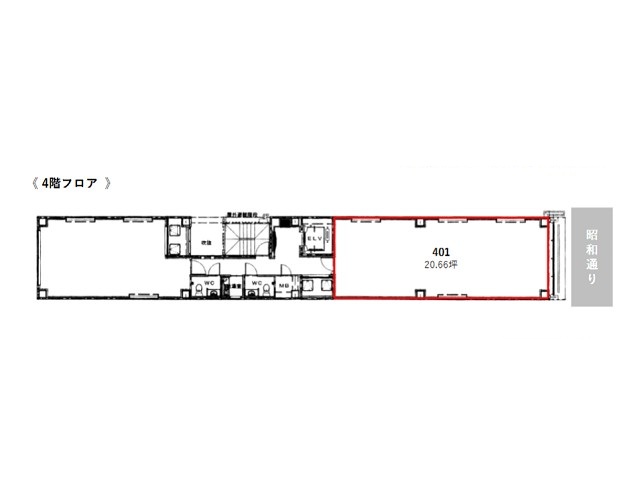
4階
401
|
|---|---|
| 坪数 | 20.66坪 |
| 用途 | 事務所 |
| 月額(賃料+共益費) (税別) | 351,220円 |
| 坪単価(賃料+共益費) (税別) | 17,000円/坪 |
| 賃料(税別) |
351,220円 (17,000円/坪) |
| 共益費(税別) | 賃料に含む |
| 敷金 | 無し |
| 礼金 | 無し |
| 償却 | 無し |
| 入居可能日 | 即日 |
| 空室確認日 | 2026/01/30 |
その他空室情報
| 階数 | 坪数 |
賃料 (税別) |
共益費 (税別) |
敷金・保証金 | 入居日 | 詳細 |
お気に入り 追加 |
|---|---|---|---|---|---|---|---|
|
8階
801セットアップ
|
20.66坪 |
454,520円 (22,000円/坪) |
賃料に含む | 無し | 2026年5月 |
|
|
|
8階
802セットアップ
|
13.3坪 |
292,600円 (22,000円/坪) |
賃料に含む | 無し | 2026年5月 |
|
|
|
9階
902 先行有
|
13.3坪 |
226,100円 (17,000円/坪) |
賃料に含む | 無し | 2026年5月 |
|
|
|
9階
901
|
20.66坪 |
351,220円 (17,000円/坪) |
賃料に含む | 無し | 2026年5月 |
|
|










