岩崎吉祥寺ビル
| 物件名 | 岩崎吉祥寺ビル | ||
|---|---|---|---|
| 住所 | 東京都武蔵野市吉祥寺本町1-15-9 | ||
| 最寄駅 | |||
| 竣工年 | 1984年3月 | ||
| 規模 | 地上8階 地下2階 | ||
| 空調 | 個別空調 | OAフロア | タイルカーペット |
| EV | 2 基 | トイレ | 男女別・室外 |
| 駐車場 | 有り | 24時間使用 | 使用可 |
| 耐震 | 新耐震基準 | 機械警備 | 有り |
募集概要
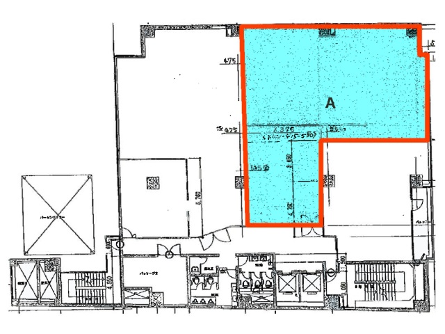
| 階数 |
3階
A
|
|---|---|
| 坪数 | 64.41坪 |
| 用途 | 事務所 , 店舗 |
| 月額(賃料+共益費) (税別) | 1,642,455円 |
| 坪単価(賃料+共益費) (税別) | 25,500円/坪 |
| 賃料(税別) |
1,352,610円 (21,000円/坪) |
| 共益費(税別) |
289,845円 (4,500円/坪) |
| 敷金 | 10ヶ月 |
| 礼金 | 無し |
| 償却 | 無し |
| 入居可能日 | 2026年7月 |
| 空室確認日 | 2026/03/12 |
その他空室情報
| 階数 | 坪数 |
賃料 (税別) |
共益費 (税別) |
敷金・保証金 | 入居日 | 詳細 |
お気に入り 追加 |
|---|---|---|---|---|---|---|---|
|
7階
A
|
22.58坪 |
474,180円 (21,000円/坪) |
101,610円 (4,500円/坪) |
10ヶ月 | 2026年6月 |
|
|









