三ツ木寿町ビル

物件名 三ツ木寿町ビル
住所 東京都府中市寿町1-1-3
最寄駅
竣工年 2001年3月
規模 地上10階 地下1階
空調 個別空調 OAフロア OAフロア
EV 2 基 トイレ 男女別・室外
駐車場 有り 24時間使用 使用可
耐震 新耐震基準 機械警備 有り

募集概要

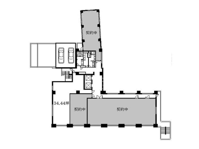
階数 7階
(先)A
坪数 34.44坪
用途 事務所
月額(賃料+共益費) (税別) 516,600円
坪単価(賃料+共益費) (税別) 15,000円/坪
賃料(税別) 378,840円
(11,000円/坪)
共益費(税別) 137,760円
(4,000円/坪)
敷金 10ヶ月
礼金 1ヶ月
償却 スライド
入居可能日 即日
空室確認日 2025/10/03

物件詳細PDF

  • お客様用
  • 業者様用

お問い合わせはこちら

更に詳細な資料情報をご希望の方はこちら

がついているものは必須項目です
物件名 三ツ木寿町ビル 7階 (先)A 34.44坪
物件住所 東京都府中市寿町1-1-3
■お問合せ内容
お問合せ内容
備考欄
■ご希望条件について教えてください
立地
ご希望の面積 ※1㎡=0.3025坪
ご希望の面積がお決まりの方は単位を選んでからご記入ください
ご予算感 ※共益費込みの月額賃料(税別)
ご予算感がお決まりの方は単位を選んでからご記入ください
ご入居希望時期
その他のご質問・ご要望など
■物件探しの目的についてお教えください
用途
業態(店舗選択のみ)
その他用途
目的
その他目的
■物件探しの目的についてお教えください
貴社名 ご担当者名  
電話番号
メールアドレス メールアドレス
(再入力)
郵便番号
都道府県/市区町村/番地
建物名/階数
確認画面へ進む

同エリアの物件

  • GS押上ビル 東京都墨田区業平4-14-6 押上

  • ステーションポートタワー 東京都荒川区西日暮里2-20-1 日暮里

  • マデリア町田 東京都町田市中町1-1-15 町田

  • 彦本第三ビル 東京都江戸川区中葛西3-37-9 葛西

Copyright(C) Quick Consulting Co.,LTD. All right reserved.