柏第一生命ビル

物件名 柏第一生命ビル
住所 千葉県柏市末広町7-3
最寄駅
竣工年 1986年12月
規模 地上7階
空調 個別空調 OAフロア OAフロア
EV 1 基 トイレ 男女別・室外
駐車場 無し 24時間使用 使用可
耐震 新耐震基準 機械警備 無し

募集概要

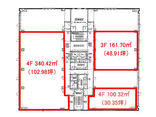
階数 4階
坪数 30.35坪
用途 事務所
月額(賃料+共益費) (税別) 相談
坪単価(賃料+共益費) (税別) 相談
賃料(税別) 相談
共益費(税別) 相談
敷金 相談
礼金 無し
償却 無し
入居可能日 2025年11月
空室確認日 2025/09/24

物件詳細PDF

  • お客様用
  • 業者様用

お問い合わせはこちら

その他空室情報

階数 坪数 賃料
(税別)
共益費
(税別)
敷金・保証金 入居日 詳細 お気に入り
追加
3階 48.91坪 相談 相談 相談 2025年10月 お問合せ お気に入り追加
4階 102.98坪 相談 相談 相談 2026年2月 お問合せ お気に入り追加
6階 30.35坪 相談 相談 相談 2025年10月 お問合せ お気に入り追加
7階 23.72坪 相談 相談 相談 即日 お問合せ お気に入り追加
7階 54.27坪 相談 相談 相談 2026年2月 お問合せ お気に入り追加

更に詳細な資料情報をご希望の方はこちら

がついているものは必須項目です
物件名 柏第一生命ビル 4階 30.35坪
物件住所 千葉県柏市末広町7-3
■お問合せ内容
お問合せ内容
備考欄
■ご希望条件について教えてください
立地
ご希望の面積 ※1㎡=0.3025坪
ご希望の面積がお決まりの方は単位を選んでからご記入ください
ご予算感 ※共益費込みの月額賃料(税別)
ご予算感がお決まりの方は単位を選んでからご記入ください
ご入居希望時期
その他のご質問・ご要望など
■物件探しの目的についてお教えください
用途
業態(店舗選択のみ)
その他用途
目的
その他目的
■物件探しの目的についてお教えください
貴社名 ご担当者名  
電話番号
メールアドレス メールアドレス
(再入力)
郵便番号
都道府県/市区町村/番地
建物名/階数
確認画面へ進む

同エリアの物件

  • KOIL BASE 千葉県柏市若葉184中央149街区 柏の葉キャンパス

  • 新松戸駅前ビル 千葉県松戸市新松戸1-483 新松戸

  • KOIL TERRACE(コイル テラス) 千葉県柏市若柴226-44中央141街区1 柏の葉キャンパス

  • ル・シーナビル 千葉県松戸市本町20-10 松戸

Copyright(C) Quick Consulting Co.,LTD. All right reserved.