プライム津大門
| 物件名 | プライム津大門 | ||
|---|---|---|---|
| 住所 | 三重県津市大門6-5 | ||
| 最寄駅 | |||
| 竣工年 | 1983年4月 | ||
| 規模 | 地上6階 | ||
| 空調 | 個別空調 | OAフロア | OAフロア / タイルカーペット |
| EV | 1 基 | トイレ | 男女別・室外 |
| 駐車場 | 有り | 24時間使用 | 使用可 |
| 耐震 | 新耐震基準 | 機械警備 | 有り |
募集概要
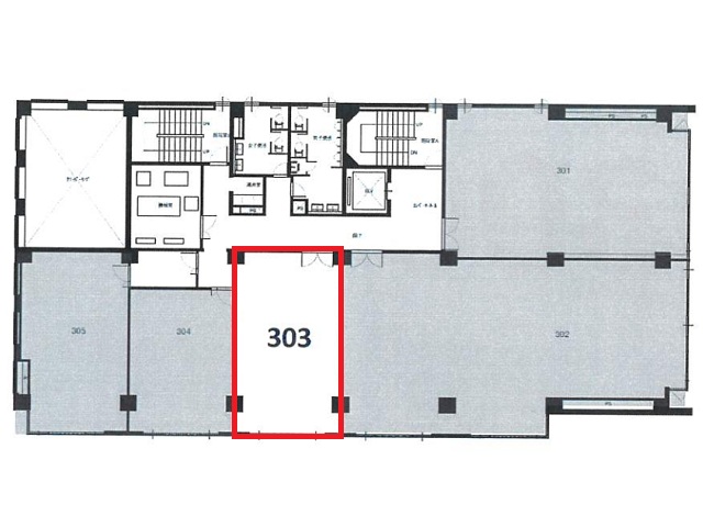
| 階数 |
3階
303
|
|---|---|
| 坪数 | 15.76坪 |
| 用途 | 事務所 |
| 月額(賃料+共益費) (税別) | 133,960円 |
| 坪単価(賃料+共益費) (税別) | 8,500円/坪 |
| 賃料(税別) |
133,960円 (8,500円/坪) |
| 共益費(税別) | 賃料に含む |
| 敷金 | 3ヶ月 |
| 礼金 | 無し |
| 償却 | 無し |
| 入居可能日 | 2026年5月 |
| 空室確認日 | 2025/11/18 |
その他空室情報
| 階数 | 坪数 |
賃料 (税別) |
共益費 (税別) |
敷金・保証金 | 入居日 | 詳細 |
お気に入り 追加 |
|---|---|---|---|---|---|---|---|
|
2階
202
|
45.52坪 |
341,400円 (7,500円/坪) |
賃料に含む | 3ヶ月 | 即日 |
|
|
|
6階
601
|
23.6坪 |
188,800円 (8,000円/坪) |
賃料に含む | 3ヶ月 | 2025年11月 |
|
|
|
6階
601-1
|
9.6坪 |
81,600円 (8,500円/坪) |
賃料に含む | 3ヶ月 | 相談 |
|
|
|
6階
601-2
|
13.98坪 |
118,830円 (8,500円/坪) |
賃料に含む | 3ヶ月 | 相談 |
|
|









