松本本町第一生命ビル
| 物件名 | 松本本町第一生命ビル | ||
|---|---|---|---|
| 住所 | 長野県松本市中央2-1-27 | ||
| 最寄駅 | |||
| 竣工年 | 1984年10月 | ||
| 規模 | 地上8階 | ||
| 空調 | セントラル空調 | OAフロア | OAフロア相談可 / 2WAY / タイルカーペット |
| EV | 2 基 | トイレ | 男女別・室外 |
| 駐車場 | 有り | 24時間使用 | 使用可 |
| 耐震 | 新耐震基準 | 機械警備 | 有り |
募集概要
| 階数 |
5階
先行有
|
|---|---|
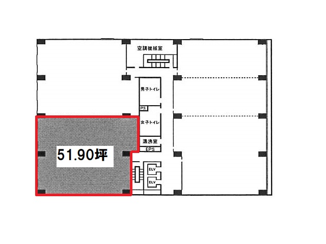
| 坪数 | 51.9坪 |
| 用途 | 事務所 |
| 月額(賃料+共益費) (税別) | 相談 |
| 坪単価(賃料+共益費) (税別) | 相談 |
| 賃料(税別) | 相談 |
| 共益費(税別) | 相談 |
| 敷金 | 相談 |
| 礼金 | 無し |
| 償却 | 無し |
| 入居可能日 | 2026年4月 |
| 空室確認日 | 2026/01/15 |









