新大阪第2ドイビル
| 物件名 | 新大阪第2ドイビル | ||
|---|---|---|---|
| 住所 | 大阪府大阪市淀川区西中島2-14-6 | ||
| 最寄駅 | |||
| 竣工年 | 1992年9月 | ||
| 規模 | 地上9階 地下1階 | ||
| 空調 | 個別空調 | OAフロア | その他 |
| EV | 2 基 | トイレ | 男女別・室外 |
| 駐車場 | 有り | 24時間使用 | 使用可 |
| 耐震 | 新耐震基準 | 機械警備 | 有り |
募集概要
| 階数 |
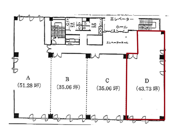
3階
D
|
|---|---|
| 坪数 | 38.03坪 |
| 用途 | 事務所 |
| 月額(賃料+共益費) (税別) | 494,390円 |
| 坪単価(賃料+共益費) (税別) | 13,000円/坪 |
| 賃料(税別) |
380,300円 (10,000円/坪) |
| 共益費(税別) |
114,090円 (3,000円/坪) |
| 敷金 | 10ヶ月 |
| 礼金 | 無し |
| 償却 | 無し |
| 入居可能日 | 2026年4月 |
| 空室確認日 | 2025/11/04 |
その他空室情報
| 階数 | 坪数 |
賃料 (税別) |
共益費 (税別) |
敷金・保証金 | 入居日 | 詳細 |
お気に入り 追加 |
|---|---|---|---|---|---|---|---|
|
3階
D
|
38.03坪 |
3,803,000円 (100,000円/坪) |
114,090円 (3,000円/坪) |
3,803,000円 | 2026年3月 |
|
|
|
3階
C
|
30.49坪 |
304,900円 (10,000円/坪) |
91,470円 (3,000円/坪) |
10ヶ月 | 2026年2月 |
|
|
|
7階
D
|
38.03坪 |
380,300円 (10,000円/坪) |
114,090円 (3,000円/坪) |
10ヶ月 | 2026年2月 |
|
|









