新大阪北ビル
| 物件名 | 新大阪北ビル | ||
|---|---|---|---|
| 住所 | 大阪府大阪市淀川区宮原4-1-46 | ||
| 最寄駅 | |||
| 竣工年 | 1985年5月 | ||
| 規模 | 地上10階 地上1階 | ||
| 空調 | 個別空調 | OAフロア | その他 |
| EV | 1 基 | トイレ | 調査中 |
| 駐車場 | 無し | 24時間使用 | 使用可 |
| 耐震 | 新耐震基準 | 機械警備 | 無し |
募集概要
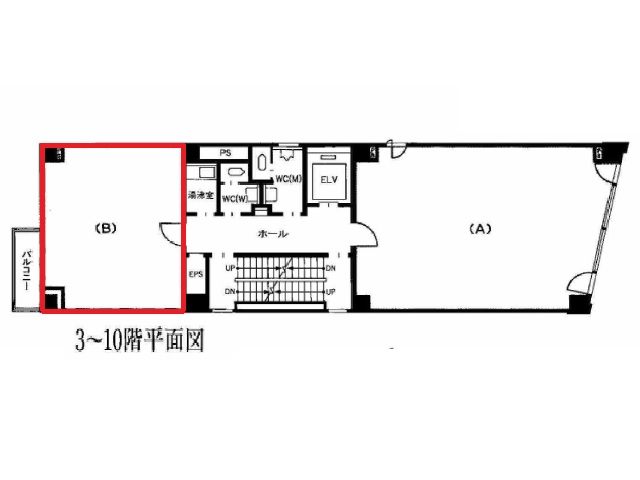
| 階数 | 3階 |
|---|---|
| 坪数 | 13.12坪 |
| 用途 | 事務所 |
| 月額(賃料+共益費) (税別) | 118,116円 |
| 坪単価(賃料+共益費) (税別) | 9,003円/坪 |
| 賃料(税別) |
85,306円 (6,502円/坪) |
| 共益費(税別) |
32,810円 (2,501円/坪) |
| 敷金 | 1,049,920円 |
| 礼金 | 無し |
| 償却 | 20% |
| 入居可能日 | 相談 |
| 空室確認日 | 2025/10/22 |









