千代田ビル北館
| 物件名 | 千代田ビル北館 | ||
|---|---|---|---|
| 住所 | 大阪府大阪市北区浪花町13-38 | ||
| 最寄駅 | |||
| 竣工年 | 1974年1月 | ||
| 規模 | 地上10階 地下1階 | ||
| 空調 | 個別空調 | OAフロア | タイルカーペット |
| EV | 2 基 | トイレ | 男女別・室外 |
| 駐車場 | 有り | 24時間使用 | 使用可 |
| 耐震 | 旧耐震基準 | 機械警備 | 有り |
募集概要
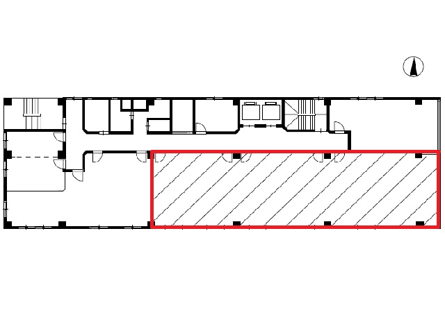
| 階数 |
3階
B~F
|
|---|---|
| 坪数 | 56.51坪 |
| 用途 | 事務所 |
| 月額(賃料+共益費) (税別) | 相談 |
| 坪単価(賃料+共益費) (税別) | 相談 |
| 賃料(税別) | 相談 |
| 共益費(税別) |
220,389円 (3,900円/坪) |
| 敷金 | 3,108,050円 |
| 礼金 | 無し |
| 償却 | スライド |
| 入居可能日 | 即日 |
| 空室確認日 | 2025/10/21 |
その他空室情報
| 階数 | 坪数 |
賃料 (税別) |
共益費 (税別) |
敷金・保証金 | 入居日 | 詳細 |
お気に入り 追加 |
|---|---|---|---|---|---|---|---|
| 1階 | 110.52坪 | 相談 | 相談 | 相談 | 相談 |
|
|
|
5階
CDE
|
27.21坪 | 相談 | 相談 | 相談 | 即日 |
|
|
|
7階
AB
|
36.52坪 | 相談 | 相談 | 相談 | 即日 |
|
|









