TATSUMI扇町公園ビル
| 物件名 | TATSUMI扇町公園ビル | ||
|---|---|---|---|
| 住所 | 大阪府大阪市北区野崎町9-13 | ||
| 最寄駅 | |||
| 竣工年 | 1965年1月 | ||
| 規模 | 地上9階 地下1階 | ||
| 空調 | 個別空調 | OAフロア | タイルカーペット |
| EV | 2 基 | トイレ | 男女別・室外 |
| 駐車場 | 有り | 24時間使用 | 使用可 |
| 耐震 | 耐震補強済 | 機械警備 | 有り |
募集概要
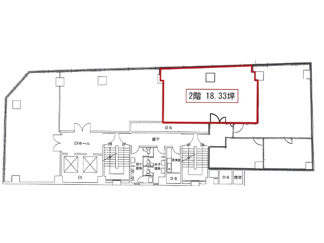
| 階数 |
2階
203
|
|---|---|
| 坪数 | 18.33坪 |
| 用途 | 事務所 |
| 月額(賃料+共益費) (税別) | 165,100円 |
| 坪単価(賃料+共益費) (税別) | 9,007円/坪 |
| 賃料(税別) |
119,100円 (6,498円/坪) |
| 共益費(税別) |
46,000円 (2,510円/坪) |
| 敷金 | 3ヶ月 |
| 礼金 | 1ヶ月 |
| 償却 | 無し |
| 入居可能日 | 2026年3月 |
| 空室確認日 | 2026/02/03 |
その他空室情報
| 階数 | 坪数 |
賃料 (税別) |
共益費 (税別) |
敷金・保証金 | 入居日 | 詳細 |
お気に入り 追加 |
|---|---|---|---|---|---|---|---|
|
8階
803
|
46.69坪 |
304,300円 (6,517円/坪) |
116,000円 (2,484円/坪) |
3ヶ月 | 2026年6月 |
|
|









