若杉グランドビル別館
| 物件名 | 若杉グランドビル別館 | ||
|---|---|---|---|
| 住所 | 大阪府大阪市北区東天満1-11-15 | ||
| 最寄駅 | |||
| 竣工年 | 1987年1月 | ||
| 規模 | 地上13階 | ||
| 空調 | 個別空調 | OAフロア | OAフロア |
| EV | 1 基 | トイレ | 男女別・室外 |
| 駐車場 | 有り | 24時間使用 | 使用可 |
| 耐震 | 新耐震基準 | 機械警備 | 無し |
募集概要
| 階数 |
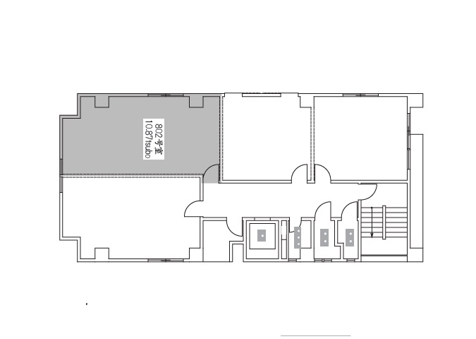
8階
802
|
|---|---|
| 坪数 | 10.87坪 |
| 用途 | 事務所 |
| 月額(賃料+共益費) (税別) | 146,745円 |
| 坪単価(賃料+共益費) (税別) | 13,500円/坪 |
| 賃料(税別) |
146,745円 (13,500円/坪) |
| 共益費(税別) | 賃料に含む |
| 敷金 | 10ヶ月 |
| 礼金 | 無し |
| 償却 | 無し |
| 入居可能日 | 2026年5月 |
| 空室確認日 | 2025/10/27 |
その他空室情報
| 階数 | 坪数 |
賃料 (税別) |
共益費 (税別) |
敷金・保証金 | 入居日 | 詳細 |
お気に入り 追加 |
|---|---|---|---|---|---|---|---|
|
2階
201
|
23.15坪 |
312,525円 (13,500円/坪) |
賃料に含む | 10ヶ月 | 即日 |
|
|
|
4階
404
|
7.18坪 |
96,930円 (13,500円/坪) |
賃料に含む | 10ヶ月 | 即日 |
|
|
|
5階
503-4
|
13.81坪 |
186,435円 (13,500円/坪) |
賃料に含む | 10ヶ月 | 2025年12月 |
|
|
|
10階
1002
|
10.87坪 |
146,745円 (13,500円/坪) |
賃料に含む | 10ヶ月 | 即日 |
|
|
|
11階
1101
|
9.09坪 |
122,715円 (13,500円/坪) |
賃料に含む | 10ヶ月 | 即日 |
|
|









