グレーシィ天神橋ビル2号館
| 物件名 | グレーシィ天神橋ビル2号館 | ||
|---|---|---|---|
| 住所 | 大阪府大阪市北区天神橋7-12-6 | ||
| 最寄駅 | |||
| 竣工年 | 1993年11月 | ||
| 規模 | 地上11階 地下1階 | ||
| 空調 | 個別空調 | OAフロア | タイルカーペット |
| EV | 2 基 | トイレ | 男女別・室外 |
| 駐車場 | 有り | 24時間使用 | 使用可 |
| 耐震 | 新耐震基準 | 機械警備 | 有り |
募集概要
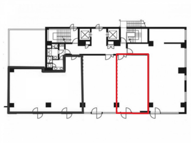
| 階数 |
4階
402
|
|---|---|
| 坪数 | 18.51坪 |
| 用途 | 事務所 |
| 月額(賃料+共益費) (税別) | 249,885円 |
| 坪単価(賃料+共益費) (税別) | 13,500円/坪 |
| 賃料(税別) |
185,100円 (10,000円/坪) |
| 共益費(税別) |
64,785円 (3,500円/坪) |
| 敷金 | 10ヶ月 |
| 礼金 | 無し |
| 償却 | 無し |
| 入居可能日 | 2026年7月 |
| 空室確認日 | 2026/01/13 |
その他空室情報
| 階数 | 坪数 |
賃料 (税別) |
共益費 (税別) |
敷金・保証金 | 入居日 | 詳細 |
お気に入り 追加 |
|---|---|---|---|---|---|---|---|
|
4階
403
|
19坪 |
190,000円 (10,000円/坪) |
66,500円 (3,500円/坪) |
1,900,000円 | 即日 |
|
|
| 8階 | 88.67坪 |
886,700円 (10,000円/坪) |
310,345円 (3,500円/坪) |
1,900,000円 | 2026年1月 |
|
|









