梅田和光ビル
| 物件名 | 梅田和光ビル | ||
|---|---|---|---|
| 住所 | 大阪府大阪市北区芝田2-2-17 | ||
| 最寄駅 | |||
| 竣工年 | 1967年7月 | ||
| 規模 | 地上7階 地下1階 | ||
| 空調 | 個別空調 | OAフロア | その他 |
| EV | 2 基 | トイレ | 男女別・室外 |
| 駐車場 | 有り | 24時間使用 | 使用可 |
| 耐震 | 旧耐震基準 | 機械警備 | 有り |
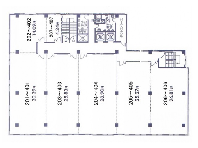
募集概要
| 階数 |
2階
202号室
|
|---|---|
| 坪数 | 14.09坪 |
| 用途 | 事務所 |
| 月額(賃料+共益費) (税別) | 225,440円 |
| 坪単価(賃料+共益費) (税別) | 16,000円/坪 |
| 賃料(税別) |
183,170円 (13,000円/坪) |
| 共益費(税別) |
42,270円 (3,000円/坪) |
| 敷金 | 1,409,000円 |
| 礼金 | 無し |
| 償却 | スライド |
| 入居可能日 | 2026年4月 |
| 空室確認日 | 2026/01/19 |
その他空室情報
| 階数 | 坪数 |
賃料 (税別) |
共益費 (税別) |
敷金・保証金 | 入居日 | 詳細 |
お気に入り 追加 |
|---|---|---|---|---|---|---|---|
|
2階
201
|
30.39坪 |
395,070円 (13,000円/坪) |
91,170円 (3,000円/坪) |
3,039,000円 | 相談 |
|
|
|
5階
503/504号
|
36.76坪 |
477,880円 (13,000円/坪) |
110,280円 (3,000円/坪) |
3,676,000円 | 即日 |
|
|
|
6階
605
|
16.33坪 |
212,290円 (13,000円/坪) |
48,990円 (3,000円/坪) |
1,641,000円 | 2026年1月 |
|
|









