日生ビル東館
| 物件名 | 日生ビル東館 | ||
|---|---|---|---|
| 住所 | 大阪府大阪市北区芝田2-2-13 | ||
| 最寄駅 | |||
| 竣工年 | 1965年7月 | ||
| 規模 | 地上8階 地下1階 | ||
| 空調 | 個別空調 | OAフロア | その他 |
| EV | 2 基 | トイレ | 男女別・室外 |
| 駐車場 | 有り | 24時間使用 | 使用可 |
| 耐震 | 旧耐震基準 | 機械警備 | 有り |
募集概要
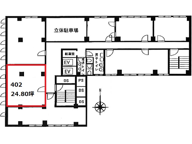
| 階数 |
4階
402
|
|---|---|
| 坪数 | 24.8坪 |
| 用途 | 事務所 |
| 月額(賃料+共益費) (税別) | 471,200円 |
| 坪単価(賃料+共益費) (税別) | 19,000円/坪 |
| 賃料(税別) |
396,800円 (16,000円/坪) |
| 共益費(税別) |
74,400円 (3,000円/坪) |
| 敷金 | 0ヶ月 |
| 礼金 | 793600円 |
| 償却 | 無し |
| 入居可能日 | 即日 |
| 空室確認日 | 2025/11/04 |
その他空室情報
| 階数 | 坪数 |
賃料 (税別) |
共益費 (税別) |
敷金・保証金 | 入居日 | 詳細 |
お気に入り 追加 |
|---|---|---|---|---|---|---|---|
|
5階
505
|
21.05坪 |
378,900円 (18,000円/坪) |
63,150円 (3,000円/坪) |
無し | 2026年2月 |
|
|
|
8階
801
|
18.22坪 |
273,300円 (15,000円/坪) |
54,660円 (3,000円/坪) |
円 | 即日 |
|
|









