イシモトビル
| 物件名 | イシモトビル | ||
|---|---|---|---|
| 住所 | 大阪府大阪市中央区平野町2-2-8 | ||
| 最寄駅 | |||
| 竣工年 | 1980年9月 | ||
| 規模 | 地上9階 地下1階 | ||
| 空調 | 個別空調 | OAフロア | OAフロア |
| EV | 1 基 | トイレ | 男女別・室外 |
| 駐車場 | 有り | 24時間使用 | 使用可 |
| 耐震 | 旧耐震基準 | 機械警備 | 有り |
募集概要
| 階数 |
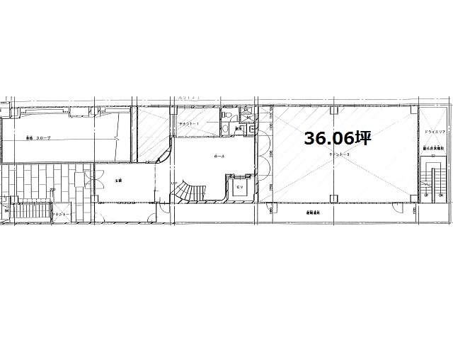
1階
102
|
|---|---|
| 坪数 | 36.06坪 |
| 用途 | 店舗 |
| 月額(賃料+共益費) (税別) | 相談 |
| 坪単価(賃料+共益費) (税別) | 相談 |
| 賃料(税別) | 相談 |
| 共益費(税別) | 相談 |
| 敷金 | 相談 |
| 礼金 | 無し |
| 償却 | 30% |
| 入居可能日 | 2026年5月 |
| 空室確認日 | 2025/11/06 |
その他空室情報
| 階数 | 坪数 |
賃料 (税別) |
共益費 (税別) |
敷金・保証金 | 入居日 | 詳細 |
お気に入り 追加 |
|---|---|---|---|---|---|---|---|
| B1階 | 22坪 | 相談 | 相談 | 相談 | 2026年3月 |
|
|
| 1階 | 7坪 |
126,000円 (18,000円/坪) |
賃料に含む | 10ヶ月 | 即日 |
|
|
| 1階 | 8坪 | 相談 | 相談 | 相談 | 即日 |
|
|
|
3階
301
|
42.04坪 |
378,360円 (9,000円/坪) |
賃料に含む | 10ヶ月 | 即日 |
|
|
|
3階
302
|
12坪 |
108,000円 (9,000円/坪) |
賃料に含む | 10ヶ月 | 2026年5月 |
|
|
|
7階
702
|
36.84坪 |
331,560円 (9,000円/坪) |
賃料に含む | 10ヶ月 | 即日 |
|
|









