第8松屋ビル
| 物件名 | 第8松屋ビル | ||
|---|---|---|---|
| 住所 | 大阪府大阪市中央区農人橋2-1-35 | ||
| 最寄駅 | |||
| 竣工年 | 1993年7月 | ||
| 規模 | 地上11階 地上1階 | ||
| 空調 | 個別空調 | OAフロア | その他 |
| EV | 1 基 | トイレ | 男女別・室外 |
| 駐車場 | 有り | 24時間使用 | 使用可 |
| 耐震 | 旧耐震基準 | 機械警備 | 有り |
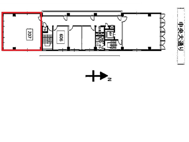
募集概要
| 階数 |
2階
207
|
|---|---|
| 坪数 | 23.29坪 |
| 用途 | 事務所 |
| 月額(賃料+共益費) (税別) | 221,255円 |
| 坪単価(賃料+共益費) (税別) | 9,500円/坪 |
| 賃料(税別) |
174,675円 (7,500円/坪) |
| 共益費(税別) |
46,580円 (2,000円/坪) |
| 敷金 | 350,000円 |
| 礼金 | 700000円 |
| 償却 | 敷引 |
| 入居可能日 | 即日 |
| 空室確認日 | 2026/02/03 |
その他空室情報
| 階数 | 坪数 |
賃料 (税別) |
共益費 (税別) |
敷金・保証金 | 入居日 | 詳細 |
お気に入り 追加 |
|---|---|---|---|---|---|---|---|
|
5階
505
|
5.91坪 |
44,325円 (7,500円/坪) |
11,820円 (2,000円/坪) |
90,000円 | 2026年4月 |
|
|
|
5階
508
|
23.29坪 |
174,675円 (7,500円/坪) |
46,580円 (2,000円/坪) |
350,000円 | 2026年4月 |
|
|
|
6階
601602
|
23.12坪 |
173,400円 (7,500円/坪) |
46,240円 (2,000円/坪) |
350,000円 | 2026年3月 |
|
|









