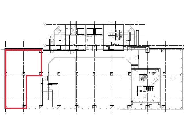
EDGE本町 B1階 33.55坪
現在、こちらのお部屋は募集しておりません。
空室情報は常に更新されています。最新の空室状況はお電話にてお問い合わせください。
こちらのビルには他に空室がございます
このビルの空室を見るEDGE本町
| 物件名 | EDGE本町 | ||
|---|---|---|---|
| 住所 | 大阪府大阪市中央区南本町2-3-12 | ||
| 最寄駅 | |||
| 竣工年 | 1989年4月 | ||
| 規模 | 地上12階 地下2階 | ||
| 空調 | 個別空調 | OAフロア | OAフロア |
| EV | 3 基 | トイレ | 男女別・室外 |
| 駐車場 | 有り | 24時間使用 | 使用可 |
| 耐震 | 新耐震基準 | 機械警備 | 有り |
募集概要
| 階数 | B1階 |
|---|---|
| 坪数 | 33.55坪 |
| 用途 | 倉庫・工場 |
この物件の最新の空室状況はお問合せ下さい
その他空室情報
| 階数 | 坪数 |
賃料 (税別) |
共益費 (税別) |
敷金・保証金 | 入居日 | 詳細 |
お気に入り 追加 |
|---|---|---|---|---|---|---|---|
| 2階 | 159.94坪 | 相談 | 相談 | 12ヶ月 | 2026年10月 |
|
|









