堺筋ビル

物件名 堺筋ビル
住所 大阪府大阪市中央区南本町2-2-3
最寄駅
竣工年 1992年3月
規模 地上9階 地下1階
空調 個別空調 OAフロア OAフロア
EV 2 基 トイレ 男女別・室外
駐車場 無し 24時間使用 使用可
耐震 新耐震基準 機械警備 有り

募集概要

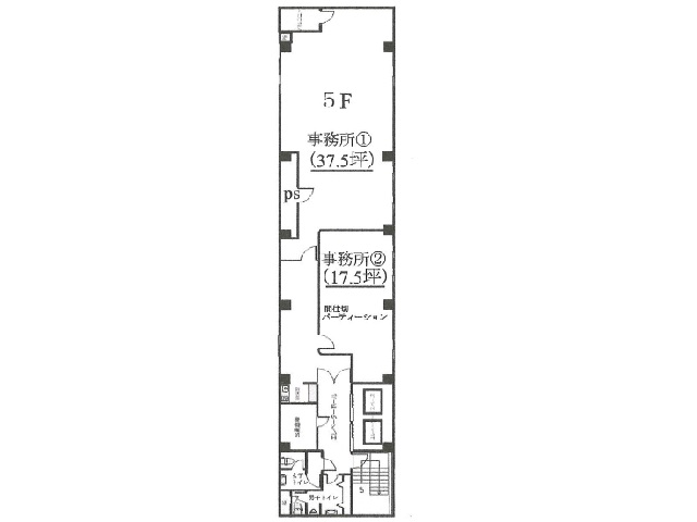
階数 5階
坪数 17.5坪
用途 事務所
月額(賃料+共益費) (税別) 232,750円
坪単価(賃料+共益費) (税別) 13,300円/坪
賃料(税別) 175,000円
(10,000円/坪)
共益費(税別) 57,750円
(3,300円/坪)
敷金 1,500,000円
礼金 無し
償却 スライド
入居可能日 即日
空室確認日 2025/10/17

物件詳細PDF

  • お客様用
  • 業者様用

お問い合わせはこちら

その他空室情報

階数 坪数 賃料
(税別)
共益費
(税別)
敷金・保証金 入居日 詳細 お気に入り
追加
4階
ワンフロア
55坪 550,000円
(10,000円/坪)
181,500円
(3,300円/坪)
4,500,000円 即日 お問合せ お気に入り追加
8階 55坪 550,000円
(10,000円/坪)
181,500円
(3,300円/坪)
4,500,000円 即日 お問合せ お気に入り追加

更に詳細な資料情報をご希望の方はこちら

がついているものは必須項目です
物件名 堺筋ビル 5階 17.5坪
物件住所 大阪府大阪市中央区南本町2-2-3
■お問合せ内容
お問合せ内容
備考欄
■ご希望条件について教えてください
立地
ご希望の面積 ※1㎡=0.3025坪
ご希望の面積がお決まりの方は単位を選んでからご記入ください
ご予算感 ※共益費込みの月額賃料(税別)
ご予算感がお決まりの方は単位を選んでからご記入ください
ご入居希望時期
その他のご質問・ご要望など
■物件探しの目的についてお教えください
用途
業態(店舗選択のみ)
その他用途
目的
その他目的
■物件探しの目的についてお教えください
貴社名 ご担当者名  
電話番号
メールアドレス メールアドレス
(再入力)
郵便番号
都道府県/市区町村/番地
建物名/階数
確認画面へ進む

同エリアの物件

  • IS本町ビル 大阪府大阪市中央区本町4-6-17 本町

  • 本町スクウェアビル 大阪府大阪市中央区本町4-6-7 本町

  • 本町コラボビル 大阪府大阪市中央区北久宝寺町4-4-2 本町

  • TTN堺筋本町ビル 大阪府大阪市中央区瓦町1-7-2 堺筋本町

Copyright(C) Quick Consulting Co.,LTD. All right reserved.