辰野心斎橋ビル
| 物件名 | 辰野心斎橋ビル | ||
|---|---|---|---|
| 住所 | 大阪府大阪市中央区南船場4-4-10 | ||
| 最寄駅 | |||
| 竣工年 | 1993年10月 | ||
| 規模 | 地上12階 地下2階 | ||
| 空調 | 個別空調 | OAフロア | OAフロア |
| EV | 3 基 | トイレ | 男女別・室外 |
| 駐車場 | 有り | 24時間使用 | 使用可 |
| 耐震 | 新耐震基準 | 機械警備 | 有り |
募集概要
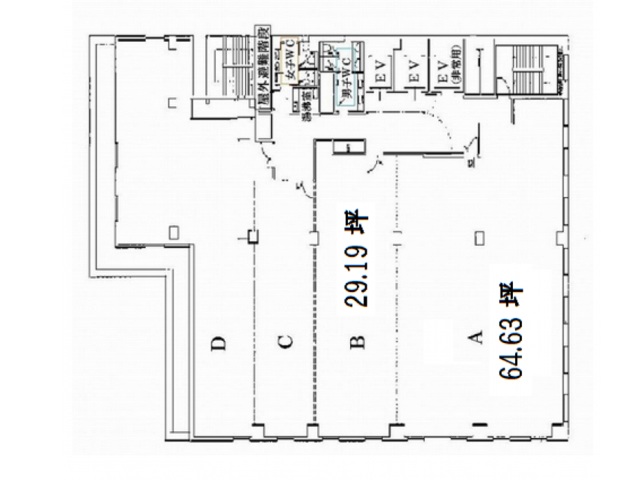
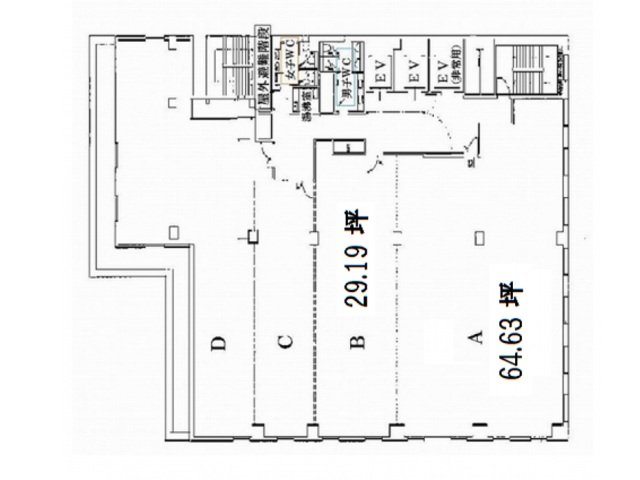
| 階数 |
8階
B
|
|---|---|
| 坪数 | 29.19坪 |
| 用途 | 事務所 |
| 月額(賃料+共益費) (税別) | 583,800円 |
| 坪単価(賃料+共益費) (税別) | 20,000円/坪 |
| 賃料(税別) |
487,473円 (16,700円/坪) |
| 共益費(税別) |
96,327円 (3,300円/坪) |
| 敷金 | 相談 |
| 礼金 | 無し |
| 償却 | 無し |
| 入居可能日 | 2026年5月 |
| 空室確認日 | 2026/03/04 |









