フェニックス南船場
| 物件名 | フェニックス南船場 | ||
|---|---|---|---|
| 住所 | 大阪府大阪市中央区南船場2-1-3 | ||
| 最寄駅 | |||
| 竣工年 | 1995年2月 | ||
| 規模 | 地上9階 地下1階 | ||
| 空調 | 個別空調 | OAフロア | その他 |
| EV | 3 基 | トイレ | 男女別・室外 |
| 駐車場 | 有り | 24時間使用 | 使用可 |
| 耐震 | 新耐震基準 | 機械警備 | 有り |
募集概要
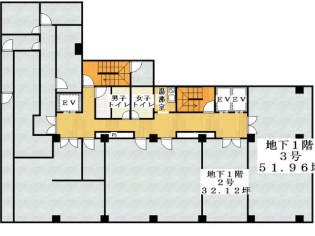
| 階数 | B1階 |
|---|---|
| 坪数 | 51.96坪 |
| 用途 | 事務所 |
| 月額(賃料+共益費) (税別) | 779,400円 |
| 坪単価(賃料+共益費) (税別) | 15,000円/坪 |
| 賃料(税別) |
623,520円 (12,000円/坪) |
| 共益費(税別) |
155,880円 (3,000円/坪) |
| 敷金 | 6ヶ月 |
| 礼金 | 無し |
| 償却 | 無し |
| 入居可能日 | 即日 |
| 空室確認日 | 2025/12/02 |
その他空室情報
| 階数 | 坪数 |
賃料 (税別) |
共益費 (税別) |
敷金・保証金 | 入居日 | 詳細 |
お気に入り 追加 |
|---|---|---|---|---|---|---|---|
| B1階 | 32.12坪 |
385,440円 (12,000円/坪) |
96,360円 (3,000円/坪) |
6ヶ月 | 即日 |
|
|
|
6階
602・603商談中
|
132.32坪 |
1,587,840円 (12,000円/坪) |
396,960円 (3,000円/坪) |
6ヶ月 | 即日 |
|
|









