四ツ橋新興産ビル 6階 14.9坪

現在、こちらのお部屋は募集しておりません。

空室情報は常に更新されています。最新の空室状況はお電話にてお問い合わせください。

こちらのビルには他に空室がございます

このビルの空室を見る

四ツ橋新興産ビル

物件名 四ツ橋新興産ビル
住所 大阪府大阪市西区北堀江1-5-2
最寄駅
竣工年 1973年12月
規模 地上12階 地下1階
空調 個別空調 OAフロア OAフロア / その他
EV 3 基 トイレ 男女別・室外
駐車場 有り 24時間使用 使用可
耐震 旧耐震基準 機械警備 有り

募集概要

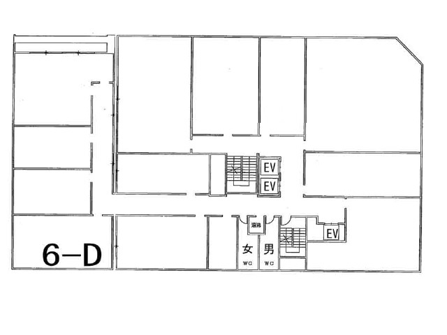
階数 6階
D
坪数 14.9坪
用途 事務所

この物件の最新の空室状況はお問合せ下さい

物件詳細PDF

  • お客様用
  • 業者様用

お問い合わせはこちら

その他空室情報

階数 坪数 賃料
(税別)
共益費
(税別)
敷金・保証金 入居日 詳細 お気に入り
追加
11階
1106
24.3坪 243,000円
(10,000円/坪)
60,750円
(2,500円/坪)
無し 相談 お問合せ お気に入り追加

更に詳細な資料情報をご希望の方はこちら

がついているものは必須項目です
物件名 四ツ橋新興産ビル 6階 D 14.9坪
物件住所 大阪府大阪市西区北堀江1-5-2
■お問合せ内容
お問合せ内容
備考欄
■ご希望条件について教えてください
立地
ご希望の面積 ※1㎡=0.3025坪
ご希望の面積がお決まりの方は単位を選んでからご記入ください
ご予算感 ※共益費込みの月額賃料(税別)
ご予算感がお決まりの方は単位を選んでからご記入ください
ご入居希望時期
その他のご質問・ご要望など
■物件探しの目的についてお教えください
用途
業態(店舗選択のみ)
その他用途
目的
その他目的
■物件探しの目的についてお教えください
貴社名 ご担当者名  
電話番号
メールアドレス メールアドレス
(再入力)
郵便番号
都道府県/市区町村/番地
建物名/階数
確認画面へ進む

同エリアの物件

  • リスロンビル 大阪府大阪市西区北堀江2-3-11 西大橋

  • アステリオ北堀江 大阪府大阪市西区北堀江1-2-19 四ツ橋

  • 丸五ビル 大阪府大阪市西区北堀江1-8-12 四ツ橋

  • 四ツ橋KFビル 大阪府大阪市西区新町1-13-3 本町

Copyright(C) Quick Consulting Co.,LTD. All right reserved.