SEKONビル
| 物件名 | SEKONビル | ||
|---|---|---|---|
| 住所 | 大阪府大阪市西区西本町1-8-14 | ||
| 最寄駅 | |||
| 竣工年 | 1991年10月 | ||
| 規模 | 地上5階 地下1階 | ||
| 空調 | 個別空調 | OAフロア | その他 |
| EV | 1 基 | トイレ | 男女別・室外 |
| 駐車場 | 無し | 24時間使用 | 使用可 |
| 耐震 | 新耐震基準 | 機械警備 | 有り |
募集概要
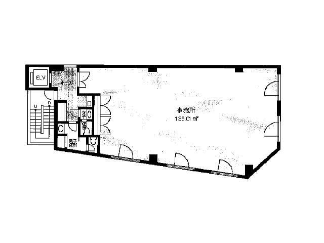
| 階数 | 4階 |
|---|---|
| 坪数 | 41.14坪 |
| 用途 | 事務所 |
| 月額(賃料+共益費) (税別) | 411,400円 |
| 坪単価(賃料+共益費) (税別) | 10,000円/坪 |
| 賃料(税別) |
287,980円 (7,000円/坪) |
| 共益費(税別) |
123,420円 (3,000円/坪) |
| 敷金 | 1,500,000円 |
| 礼金 | 無し |
| 償却 | スライド |
| 入居可能日 | 2026年2月 |
| 空室確認日 | 2025/11/25 |









